• Проектирование бани
  • Размещение бани
  • Планировка бани
  • Планы бань, состоящих из трех помещений — парильни, моечной и предбанника
  • План бани на двух человек, в которой парильня совмещена с моечной
  • Семейная баня на 4–5 человек
  • Семейная баня на 6–8 человек
  • Предбанник
  • Моечная
  • Парная
  • Оборудование для бани
  • Фундамент бани
  • Виды грунта
  • Разметка площадки под фундамент
  • Виды фундаментов
  • Ленточный фундамент
  • Столбчатый фундамент
  • Изготовление бетонных столбов
  • Бревенчатые и брусчатые стены бани
  • Подготовка бревен
  • Складывание сруба из бревен
  • Разметка вертикальных диаметров бревен
  • Раскрой бревна
  • Оконопачивание стен
  • Сборка стен из бруса
  • Монтирование оконных и дверных коробок
  • Обшивка стен
  • Каркасные стены бани
  • Каркасные стены из бревен
  • Каркасные стены из бруса
  • Обшивка каркаса
  • Утепление, гидро- и пароизоляция каркасных стен
  • Панельные стены бани
  • Подготовка панелей
  • Установка панелей
  • Обшивка панельных стен
  • Утепление, гидро- и пароизоляция панельных стен
  • Защита деревянных конструкций бани
  • Защита от промерзания наружных стен
  • Защита дерева от плесени и гниения
  • Защита от возгорания
  • Кирпичные стены бани
  • Инструмент для кирпичной кладки
  • Кирпичная кладка
  • Перекрытия бани
  • Потолок бани
  • Крыша бани
  • Двускатная крыша
  • Кровля бани
  • Кровля из рулонных материалов
  • Кровля из асбошифера
  • Кровля из дерна
  • Устройство подвесных желобов
  • Полы бани
  • Дощатые полы
  • Устройство дренажной системы
  • Укладка лаг
  • Настил дощатого покрытия
  • Вентиляция пола
  • Острожка пола и установление плинтусов
  • Выполнение бетонного покрытия
  • Облицовка полов метлахской плиткой
  • Земляные полы
  • Двери бани
  • Окна бани
  • Веранда и крыльцо бани
  • Возведение веранды
  • Возведение крыльца
  • Вентиляция бани
  • Печь-каменка
  • Печи-каменки длительного режима действия
  • Печи-каменки на твердом топливе
  • Печь-каменка конструкции Ф. И. Мартынкевича
  • Печь-каменка для дачи
  • Электрокаменки
  • Печи-каменки на жидком топливе
  • Газовоздушные печи-каменки
  • Печи-каменки периодического режима действия
  • Топка кирпичной печи каменки
  • Сооружение печи-каменки из кирпича
  • Устройство фундамента
  • Кладка стен печи-каменки
  • Установка печных приборов
  • Кирпичная печь каменка простой конструкции
  • Кирпичная печь каменка с водогрейным баком
  • Кладка трубы
  • Пробная топка печи и просушивание
  • Оштукатуривание стен печи
  • Каменная засыпка для печи бани
  • Вода для бани
  • Электропроводка и электроприборы в бане
  • Методика банной процедуры в русской бане
  • ГЛАВА 2

    Как построить русскую баню

    Как построить русскую баню и как ею пользоваться, полезно знать всем. Каждая семья может соорудить в сельской усадьбе или на садовом участке маленькую, но настоящую баню, позволяющую пройти все основные банные процедуры в более или менее комфортных условиях.

    Зная особенности, достоинства и недостатки различных типов бань, садовод, дачник, сельский и даже городской житель может создать баню оригинальной конструкции, наиболее полно соответствующую его желаниям. Здесь имеется неограниченный простор для творчества с учетом конкретных условий и возможностей. Однако большинству застройщиков нужны простые, дешевые, но удобные и проверенные на практике решения. В этом смысле наибольший интерес представляют разновидности русской бани, устройство которой отработано веками.

    В первую очередь нужно подумать о планировке и размещении бани.

    Проектирование бани

    Перед планировкой бани вы должны определиться по следующим вопросам:

    — на сколько человек будет ваша баня;

    — будет ли она совмещена с другими хозяйственными постройками;

    — для каких целей, кроме банных процедур, она может вам понадобиться.

    Баня может стать временным жильем на период ремонта дома, помещением для сушки ягод, грибов, лекарственных трав, для выращивания рассады. В бане можно оборудовать фотомастерскую.

    На Руси в давние времена с бани начинали застройку новой усадьбы. В бане жила семья до тех пор, пока не был построен дом. Впоследствии она использовалась и как спальное помещение для гостей.

    Проектируя размещение и устройство бани, желательно проконсультироваться с архитектором или опытным строителем. Учтите все ваши потребности и возможности, рельеф, форму и размеры участка, архитектуру и размещение дома и других строений на своем и соседних участках, интересы и возможности семьи и т. п. Выберите для бани удобное и красивое место, оптимальные размеры, интересный дизайн, необходимые материалы и оборудование.


    Основные правила проектирования бани:

    — место расположения бани должно быть вдали от пыльной и шумной дороги, закрытым от соседей деревьями, кустарником, другими постройками;

    — максимально используйте ландшафт участка (горки, склоны, камни-валуны). Например, в крутой склон может вписаться баня-полуземлянка. В этом случае потребуется минимальное заглубление при сооружении водостока. Эффектно выглядит терраса на столбах перед такой баней;

    — если у вас есть возможность, то расположите баню на расстоянии 20–30 м от пруда, реки, озера. Очень важно, чтобы это место было сухим и не затапливалось при весеннем разливе водоема. Разместив баню в таком месте, вы должны продумать отвод воды из нее, исключив загрязнение водоемов использованной водой;

    — окна бани располагайте на запад или юго-запад. В основном баню топят вечером. Лучи заходящего солнца, проникая в окна бани, создадут атмосферу уюта и покоя. Окна делайте небольшими (в старину предпочитали париться в темноте — считалось, что в темноте жар бани щедрее);

    — вход в баню желательно делать с юга. С этой стороны зимой будет меньше сугробов;

    — учтите следующие противопожарные требования: если ваша баня будет топиться «по-черному», то расстояние до других строений на вашем и соседнем участках должно быть не менее 12 м; располагайте такую баню с той стороны жилого дома, куда чаще всего дует ветер;

    — если ваша баня недымная, то расстояние между ней и жилыми домами должно быть не менее 5–6 м. В городах Финляндии недымные бани устраивают в подвальных помещениях многоэтажных домов и даже на крышах. Причем на крышах бани-солярии соседствуют с теплицами, «огородами»;

    — рядом с баней можно выкопать небольшой бассейн или водоем глубиной 1,5 м, который можно использовать в жаркое время для купания детей;

    — совмещайте баню с другими хозяйственными постройками. Это поможет вам рационально использовать площадь участка, материалы, облегчит электро- и водоснабжение бани, отвод воды в канализацию;

    — баня должна быть компактной, удобной и экономной.

    Размещение бани

    Баня, совмещенная с летней кухней и теплицей

    Баня, совмещенная с летней кухней и теплицей, на дачном участке площадью 500 м2, представлена на рис.1.


    Рис. 1. План дачного участка: 1 — жилой дом; 2 — баня; 3 — летняя кухня; 4 — теплица; 5 — емкость с водой; 6 — компостная яма; 7 — туалет; 8 — огород; 9 — живая изгородь; 10 — цветники; 11 — плодовые деревья; 12 — ягодные кустарники.


    Этот дачный вариант удобен тем, что летняя кухня служит предбанником, печь на кухне — каменкой в бане, а трубы водогрейного бака печи соединены с трубами, проходящими через теплицы. В этом случае теплица отапливается теплой водой во время приготовления пищи и топки бани. Расстояние от дома до бани и летней кухни — не менее 5 м.

    Баня и кухня имеют общую односкатную и бесчердачную крышу. Окна кухни выходят на юго-запад и северо-запад. Моечная комната бани освещается через окно в двери на кухню. Парная имеет маленькое, высоко расположенное окно, выходящее в кухню. Вечером лампы в кухне освещают и парильню с моечной.

    Баня для сельского дома, совмещенная с кухней

    Такая баня (рис. 2) имеет общую с кухней печь и общую систему канализации. Она удобна тем, что ее в любой момент можно использовать. Особую сложность представляет сооружение печи, конструкция которой дает возможность одновременного или попеременного включения отопления бани каменкой и отделения печи для обогрева дома. Печь-каменка с накаленными камнями очистит воздух, просушит дом. Через поддувало, расположенное на уровне или ниже пола, будет вентилироваться воздух в бане и во всем доме.


    Рис. 2. План бани: 1 — жилая комната; 2 — кухня; 3 — печь кухни; 4 — каменка бани; 5 — парная и моечная; 6 — веранда.


    Совмещая баню с домом, важно выполнить следующие требования.

    При постройке дома с баней нужно соблюдать санитарно-технические условия. Если вы сделаете хорошую гидроизоляцию и вентиляцию бани, правильно соорудите канализацию, то избежите сырости, неприятных запахов в жилом помещении и уменьшения срока службы дома. В этом случае баня создаст необходимый комфорт.

    При пользовании баней избегайте обильных подач воды на камни и охлаждения их. Воздух в такой бане должен быть сухим и горячим. После банных процедур баня\ должна хорошенько просохнуть.

    Обеспечьте пожарную безопасность помещений.

    Баня для сельского дома, совмещенная с санузлом

    Рис. 3. План бани: 1 — жилая комната; 2 — кухня; 3 — туалет; 4 — раздевалка-предбанник; 5 — душевая комната; 6 — парная; 7 — окно; 8 — двери; 9 — веранда.


    Эта баня удобна тем, что она имеет общий с санузлом сток в канализацию (рис. 3). Она достаточно комфортна. Здесь предусмотрены душ в моечной комнате, туалет и отдельная печь-каменка. Особую сложность представляет устройство системы канализации. Важно правильно устроить моечную и место для мойки в парильне. Отработанная вода должна полностью стекать в общую систему канализации. По пути стока воды в канализационный колодец необходимо установить гидрозатвор. Он несложен по своей конструкции и полезен тем, что предотвращает проникновение запахов из канализации в баню.

    Планировка бани

    При проектировании бани и определении ее размеров вы должны учесть состав вашей семьи и цели, для которых строится баня. Она должна быть не громоздкой, но и не тесной — в парной должно помещаться несколько человек. Вентиляция бани должна проходить через форточку или вентиляционный канал в печи. Основные помещения бани — парная, моечная и раздевалка.

    Семейную баню, не совмещенную с другими строениями, рекомендуется строить полезной площадью не менее 10 м2 и наружными размерами 3,5×3,5 м. Такой баней сможет пользоваться семья из 5–6 человек (в 2–3 захода).

    Размеры мини-бани с совмещенной парной и моечной и при отсутствии предбанника — 1,8×2 м. Меньших размеров делать баню не стоит, хотя многие умудряются соорудить баню-шкаф площадью менее 2 м2, где один человек может нагреть тело, попариться и помыться. Такая баня-шкаф быстро нагревается при минимальных затратах энергии.

    На Руси парились даже в русской печи. Натопив печь, чисто ее выметали, стелили солому, на которую укладывался человек и парился, поддавая на свод печи водой. При этом закрывали заслонку.

    Планы бань, состоящих из трех помещений — парильни, моечной и предбанника

    Баня на рис. 4 А рассчитана на двух человек (в положении сидя). Ее размеры позволяют париться только попеременно. Чтобы сэкономить пространство бани, необходимо отказаться от скамьи, заменив ее низкими табуретами.

    Баня на рис. 4 В позволяет мыться трем человекам, но в положении сидя. В парной могут поместиться двое, но в положении с согнутыми ногами. С комфортом париться и отдыхать лежа может только один человек. Отапливается баня кирпичной печью-каменкой, топочное отверстие которой находится в моечной комнате.


    Рис. 4. План бани: А — для двух человек; В — для трех человек; С — для двух человек; 1 —вешалка; 2 — предбанник; 3 — парная; 4 — моечная; 5 — скамья; 6 — полок; 7 — лежанка; 8 — двери;9 — печь-каменка; 10 — стол; 11 — шкафы.


    Баня на рис. 4С позволяет двум человекам с комфортом париться в парной, выполнять массаж и отдыхать в теплой моечной. Печь-каменка топится из предбанника, где достаточно места для размещения шкафов с одеждой, вешалки и даже стола.

    План бани на двух человек, в которой парильня совмещена с моечной

    Совмещение парной и моечной (рис. 5) не совсем удобно, так как влажность воздуха здесь будет слишком высока, а температура воздуха будет ниже, чем в бане с раздельными помещениями. Такая баня особенно неудобна для детей и стариков, которые плохо переносят промежуточное охлаждение тела. Однако совмещение парной и моечной позволяет почти в два раза уменьшить общую площадь и размеры бани.


    Рис. 5. План бани: 1 — парная, совмещенная с моечной; 2 — предбанник; 3 — печь-каменка; 4 — полок сиденье; 5 — полок-лежанка; 6 — подставка; 7 — скамейка; 8 — двери.


    Чтобы понизить влажность воздуха нужно:

    — установить печь, имеющую большую теплотворную мощность;

    — отказаться от душа;

    — умеренно пользоваться водой, не разбрызгивая ее;

    — выполнять банные процедуры в следующей последовательности: сначала всем париться, проветрить баню и только после этого всем мыться.

    Семейная баня на 4–5 человек

    В современных комфортабельных банях предусматривают много помещений: душевую комнату, туалет, комнату отдыха, в которой можно разместить лежанку, стол и даже камин для обогрева. Планируя такую баню, не забудьте о террасе, где можно устроить солярий, как естественный, так и искусственный. Полезная площадь таких бань 12–16 м2.

    Для сельских усадеб рекомендуется семейная баня на 4–5 человек (рис. 6). Она удобна даже для временного жилья, которое может отапливаться камином, совмещенным с печью-каменкой. Топочное отверстие печи расположено в предбаннике. Здесь же можно поместить ящик для топлива, устроить комнату отдыха.


    Рис. 6. План бани: 1 — парная; 2 — моечная; 3 — душевой поддон; 3 — предбанник; 4 — печь-каменка; 5 — камин; 6 — полок; 7 — лежанка; 8 — подставка; 9 — отдушина; 10 — двери;11 — вешалка; 12 — окно; 13 — стол; 14 — терраса.

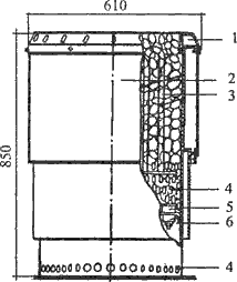
    Семейная баня на 6–8 человек

    Эта бревенчатая баня (рис. 7) имеет три помещения: предбанник, моечную и парную. Баня отапливается П-образной печью на 6 ведер воды, в которой камни и вода греются от топки. Дымоход проходит через моечную и нагревает ее.

    Предбанник

    Если вы имеете очень маленькую площадь для постройки бани, совмещенной с домом, то можно ограничиться в ней только двумя помещениями — объединенной моечной с парной и предбанником. В самом крайнем случае можно обойтись и без предбанника. Для этого сделайте перед баней широкое крыльцо с навесом.

    Если вы строите баню отдельно стоящую, то без предбанника вам не обойтись. Он защитит баню от холода и ветра и послужит для многих других целей. Он может быть и помещением для хранения топлива, воды, противопожарного инвентаря, раздевалкой, комнатой отдыха и местом, где можно остудиться от банного жара.

    Основные требования к устройству предбанника:

    — На одного человека должно приходиться не менее 1,3 м2 площади предбанника. Ширина его должна быть не менее 1 м. Оптимальный размер предбанника — 140×230 см.

    — Он должен быть утеплен, не пропускать сквозного ветра.

    — Обеспечьте хорошее освещение предбанника. Его окна могут быть широкими, но должны располагаться повыше, их не зашторивают.


    Рис. 7. Семейная баня на 6–8 человек: 1 — предбанник; 2 — моечная; 3 — парная; 4 — П-образная печь; 5 — полок; 6 — скамейка; 7 — ванна с холодной водой; 8 — бак с водой; 9 — дымоход.


    — Устройте в предбаннике систему полок и скамеек для сиденья, размещения обуви, хранения топлива (дров). Если ваша баня будет топиться углем, то он должен храниться в ящике с крышкой. Не забудьте о вешалках для одежды. В этом случае предбанник будет служить местом отдыха после мытья, а в другое время — местом выполнения различных работ.

    Моечная

    Моечная комната может совмещаться с душевой. Ее название говорит о ее функции. Здесь должны находиться емкости с горячей и холодной водой, система скамеек, ванночка для принятия душа.

    В русских банях женщины стирали после того, как попарят и вымоют детей и помоются сами. И в современных банях моечная комната может стать прачечной. Поэтому здесь устанавливают стиральную машину.

    Основные требования к устройству моечной:

    — Минимальный размер моечной рассчитывается исходя из того, что на каждого из одновременно моющихся должно приходиться не менее 1 м2 площади комнаты, оптимальный размер — 180×180 см; если вы хотите установить в моечной лежанку размером 65×180 см, то размеры моечной должны быть не менее 2×2 м.

    — Моечная должна быть отделена от парной легкой перегородкой с дверью. Это позволит регулировать температуру и влажность на полках независимо от теплового режима в моечной. В этом случае одни могут париться, другие — мыться или отдыхать в предбаннике. А отгороженная от парной моечная с широкой скамьей удобна для детей и лиц, которым парные процедуры противопоказаны.

    Парная

    Парная — главное помещение бани. От ее устройства во многом зависит вся банная процедура.

    Основные требования к устройству парной:

    — Парная должна быть комфортной и удобной для пользования веником и размещения, как минимум, двух человек. Посещение бани вдвоем и втроем обеспечивает безопасность моющихся, взаимный контроль за самочувствием, исключает возможность несчастных случаев. Но в бане не только моются, но и общаются. Недаром, по традиции, приглашают париться самых близких людей.

    — Размеры парной зависят от размера печи-каменки, количества одновременно парящихся, способа их размещения на полке. Лучше делать парную квадратной. Можно спроектировать полки для размещения на них сидя, полулежа или лежа. Оптимальные размеры парной в семейной бане — 180×140 см.

    — Парная должна иметь и долго сохранять высокую температуру воздуха.

    — Тепло в парной должно распространяться равномерно со всех сторон (тело должно равномерно нагреваться).

    — Для сбережения тепла дверь в парную должна быть с высоким порогом и низкой коробкой.

    Полок в парной

    Полок в парной может иметь разную форму, в зависимости от того, как вы на нем будете располагаться: плоские лежанки с упором для головы, скамейки со спинкой, скамейки в виде кресла-шезлонга (рис. 8).

    Основные требования к устройству полка:

    — Даже в самой маленькой парной ширина пристенного полка-скамейки для сидения должна быть не менее 40 см.

    — Ширина полка:

    для расположения сидя — 90 см;

    для расположения лежа, согнув ноги —150 см;

    для расположения лежа, вытянув ноги — 180 см;

    — Длина полка — не менее 180 см;

    — Высота между полками — 35–50 см;

    — Расстояние от полка до потолка — не менее 1 м.

    — Наилучшая конструкция полка — сборно-разборная. Такой полок удобно просушивать и чистить.

    — Для изготовления полка используйте узкие, хорошо оструганные доски с закругленными краями. Доски не должны шататься и скрипеть.

    — Между досками оставляйте пространство для циркуляции воздуха.

    — При устройстве полка сделайте упоры для поднятых ног. Для этого используйте доску или рейки.


    Рис. 8. Полок в парной: 1 — полок для размещения лежа; 2 — полок с шезлонгом и упором для ног в положении лежа; 3 — полок с упором для ног в положении лежа; 4 — полок для размещения лежа с согнутыми ногами; 5 — полок для размещения сидя; 6 — полок для размещения сидя, откинувшись назад; 7 — полок для размещения сидя с согнутыми ногами.


    Устраивая полок, продумайте его конструкцию и учтите все мелочи. Неудобный полок может испортить даже отлично построенную баню.

    Конструкция полка зависит в первую очередь от размеров бани. Если вы построили просторную баню на 6–8 человек, то в ней можно устроить полок в 2 и даже 3 яруса вдоль стены без окна. Размеры верхнего полка для размещения лежа 65×180 см, среднего и нижнего — меньше. Высота нижнего полка — 20 см, среднего полка — 50 см, верхнего — 90 см.

    В банях с совмещенной парной и моечной самое удобное расположение полка — Г-образное, когда средний полок укрепляют на другой стене.

    Полки и скамьи в бане должны украшать ее и быть надежно прикрепленными к стене. Делайте полок из древесины, которая не сильно нагревается и не имеет смол (липа, осина и тополь). В современных банях для изготовления полка используют африканское дерево абаши, которое почти не нагревается в жаркой парной и быстро сохнет.

    При изготовлении полка вначале сделайте раму из брусьев, на которые потом набейте тонкие доски в поперечном положении. Можно располагать доски и в продольном положении. Главное условие — промежуток между досками должен быть равен 1 см. Это обеспечит хорошую вентиляцию и просыхание полка. С этой же целью делайте наклонными поверхности всех конструкций — досок, брусьев, планок и упоров. Вода будет легко с них стекать.

    Прикрепляя доски к раме, нельзя использовать металлические гвозди. В противном случае вы будете о них обжигаться. Вместо гвоздей используйте деревянные (дубовые) штыри. Если вы все же захотите использовать металлические нержавеющие винты, то вворачивайте их снизу, через брусья в доску. В этом случае шляпки винтов не будут касаться тела.

    Средний полок вы можете укрепить стационарно, а вот верхний и нижний сделайте съемными или откидными.

    Причем нижний полок рекомендуется заменить скамейкой. Это облегчит уборку и просушку помещения. Для монтирования съемных полков укрепите на стену брусья для их опоры. Желательно гидроизолировать нижние торцы стоек и ножек полка. Для этого можно использовать резину (рис. 9).


    Рис. 9. Конструкция полка. А — лежанка; В — скамейка; С — полок; 1 — стойка; 2 — опорный брус; 3 — доски; 4 — рама; 5 — опора; 6 — гидроизоляция.


    Для того, чтобы лежа на полке не класть ноги на стену, предусмотрите подставки для поднятых ног. Их можно сделать в виде перил, перекладины (прямоугольного или круглого сечения).

    Оборудование для бани

    Оборудование должно напоминать о старой русской бане, быть простым и удобным, выполняться из естественных материалов. В наше время продаются наборы деревянных ковшиков, кадушек, ведерок, мочалок из растений и т. д. Деревянные детали конструкции и оборудования бани не должны покрываться лаком или краской по нескольким причинам:

    — дерево, покрытое лаком или краской, теряет тепло и становится неприятным для тела;

    — под воздействием высокой температуры и влаги лак или краска разлагаются, источая неприятный и вредный запах.

    Для удобства проведения банной процедуры предусмотрите в парной и моечной переносные деревянные подголовники, легкие деревянные держатели для ног. К стене в нужном месте прибейте деревянные подставки для мыла, крючки для мочалки, ковша и т. п. В предбаннике оборудуйте вешалку, скамейку, шкафчики для одежды, обуви, ящики для топлива. Не забудьте об аптечке.

    Если вы выполните все необходимые требования к устройству бани, то процедура ее посещения доставит вам большое удовольствие. Вы сможете хорошо отдохнуть и отвлечься от повседневных забот в обстановке тишины, полумрака и банных ароматов.

    Фундамент бани

    Для того чтобы баня служила долго, а стены не проседали, не перекашивались и не трескались, ее нужно ставить на фундамент. Фундамент служит для принятия нагрузок конструкции бани и защиты ее стен от грунтовой влаги.

    Его вид зависит от того, из каких материалов будут возведены стены, какого размера будет баня и от вида грунта (его состава, плотности, влажности и т. д.).

    Наши предки ставили бревенчатую баню на камни, уложенные на землю, и обмазывали глиной, чтобы защищать пол от продувания снизу. По углам баня опиралась на крупные камни. Часто фундаментом деревянной бани служил нижний венец бани из дуба — оклад, который был одновременно и опорой для пола.

    Виды грунта

    Основание фундамента может быть естественным и искусственным. Для начала нужно сделать анализ грунта. На естественном основании фундамент ничем не укрепляется. Если же грунт ненадежен, то его укрепляют искусственным способом.

    Грунты, расположенные в основании, должны удовлетворять следующим требованиям:

    — не оползать и не проседать;

    — не вспучиваться;

    — обладать достаточной несущей способностью и равномерной сжимаемостью;

    — исключать аварийные просадки из-за слабой мощности грунта и оползни при наклонном расположении пластов, ограниченных косогором и близостью грунтовых вод.

    Непригодны в качестве основания торфяники, илы, мелкий песок. Такой грунт заменяют «подушкой» из крупнозернистого песка, которую укладывают в траншею слоем 20 см, трамбуют и поливают водой.

    Однородный грунт

    Наиболее удобное основание —однородный грунт.

    На однородном, плотном и сухом грунте можно возводить столбчатый фундамент, уложив крупные природные камни с параллельными плоскостями под всеми углами бани и в местах сочленения внутренних стен с наружными, а между ними — не реже чем через 1 м. Потом на них укладывают нижние венцы или брусья бани. Эти венцы нужно предварительно обработать антисептиком и обмазать смолой (горячим битумом).

    Желательно сложить камни сплошной лентой и на них положить гидроизоляцию. Затем нужно сделать отмостку, защищающую баню от проникания дождевой воды. Для этого траншею, образовавшуюся после снятия слоя почвы, заполняют глиной. Также глиной заполняют и промежутки между камнями, грунтом и нижним венцом бани. Самая экономичная и простая — глинощебеночная отмостка (рис. 10). Ширина ее должна быть 50–100 см с уклоном от бани. Причем отмостка должна быть шире карнизного отвеса крыши на 20 см. По краям проройте канавки для стока воды.


    Рис. 10. Глинощебеночная отмостка: 1 — шебень, утрамбованный в глину; 2 — глина; 3 — грунт.

    Неоднородный грунт

    На участках с неровной поверхностью, с неоднородным и влажным грунтом нужно строить ленточный фундамент, углубив его на требуемую глубину. Перед возведением фундамента на таком грунте с низким уровнем грунтовых вод нужно удалить растительный грунт, выполнить песчано-гравийную засыпку с уплотнением.

    Глинистый грунт

    Фундаменты, возведенные на грунтах, склонных к вспучиванию, и оставленные на зимнее время без стен, перекрытий, крыши, могут деформироваться. Если грунты глинистые и суглинистые, фундамент выполняют по предварительно уплотненной песчаной подушке толщиной 30 см. В глинах и суглинках подземная часть фундаментов может выполняться без опалубки, надземная — во всех случаях обязательно в опалубке.

    Если вы вынуждены строить баню на глинистом грунте, то нужно предупредить вспучивание грунта зимой и оседание его летом. При вспучивании грунта баня может подняться на 10 см. В результате в стенах могут появиться трещины, баня может сильно перекоситься.

    Чтобы избежать этого, закладывайте фундамент на глубину не менее 50 см (ниже глубины промерзания грунта). Но этого мало, так как баня — слишком легкое строение, которое может выталкиваться вместе с примерзшим грунтом даже при такой глубокой закладке фундамента. Поэтому сделайте для фундамента противопучинную защиту.

    Для этого засыпьте песком или мелким гравием траншею вокруг фундамента. Предварительно фундамент покройте солидолом, смесью отработанного машинного масла с садовым варом, которую нагрейте и тщательно перемешайте.

    Разметка площадки под фундамент

    Подготавливая площадку для строительства бани, учтите, что она должна быть ровной, с небольшим уклоном на восток, юг или запад. Это обеспечит хороший сток ливневой воды и предотвратит затапливание талыми водами.

    Сначала снимите растительный слой почвы и выровняйте площадку. Затем, в соответствии с проектом бани, нанесите контур фундамента. Ширину фундамента рассчитывайте исходя из конструкции стен, но не менее ширины стены с добавлением 10 см.

    Подготовьте колышки длиной 50 см, шнур, рулетку, уровень и прямоугольный треугольник, изготовленный из тонких реек и имеющий катеты длиной 30 и 60 см. Наметьте один угол бани и забейте в землю колышек. Затем наденьте на него треугольник и по одной внешней стороне его отмерьте размер, равный длине продольной стены бани, а по другой — размер, равный длине поперечной стены в осевых линиях. На концах размеров стен (на пересечении осей) в полученные точки забейте второй и третий колышки (рис. 11)


    Рис. 11. Разметка площадки под фундамент: 1 — обноска из досок; 2 — шнур; 3 — отвес; 4 — уровень.


    После этого перенесите треугольник в противоположный угол бани. Определите оси и забейте четвертый колышек. Чтобы поверить правильность забивки колышков, сравните диагонали в полученном прямоугольнике. При правильной разбивке диагонали будут равны или иметь разницу не более 20 мм.

    Затем устанавливайте обноску на расстоянии 1–2 м от колышков. Ее делают из столбиков с прибитыми к ним досками. Прибивайте доски на высоте 1–1,5 м от земли или на уровне (отметке) пола бани по проекту. Следите за тем, чтобы направление досок обноски было строго параллельно стенам бани. Перед креплением досок обноски к столбикам, проверьте еще раз всю конструкцию при помощи уровня и рейки.

    Затем приступайте к нанесению осевых размеров плана фундамента на верхнюю кромку обноски. Для этого вбейте гвозди в засечки и между ними натяните шнур так, чтобы он проходил строго над вбитыми в углы домика колышками. Натяните все оси и проверьте их. Затем перенесите осевые линии на площадку при помощи отвеса и отложите от них в стороны нужные размеры. По ним проведите линии, определяющие контуры внутренней и наружной сторон фундаментов.

    Далее можно приступать к подготовке траншей или ям для фундамента. Возводите фундамент сразу же после выемки грунта. Желательно закончить строительство бани за один сезон.

    В зависимости от глубины и плотности грунта траншее придают ту или иную форму: при глубине траншеи до 1 м стены ее выполняют вертикальными, более 1 м, с небольшим уклоном или откосом.

    Для предотвращения осыпания грунта поставьте между стенками траншеи щиты с распорками (после окончания работы их достаньте). Вынутую из траншей землю ссыпайте в середину плана бани. После устройства фундамента эту землю разровняйте, тщательно утрамбуйте и доведите поверхность утрамбованной земли до проектной отметки.

    Для того, чтобы внутри бани было меньше шума от звуковых волн, отражающихся стенами, не делайте стороны фундамента и стен строго параллельными. Принято отклонение стен на 3,5 см на каждый 1 м длины.

    Опытные строители складывают противоположные стены с отклонением от параллельного положения на 4°: одну стену отклоняют в одну сторону на 2°, другую стену — в другую сторону на 2°.

    Виды фундаментов

    Фундаменты для бани бывают двух видов — ленточные и столбчатые.

    Ленточный фундамент

    Ленточный фундамент возводят из бута, бутобетона, сборного и монолитного бетона (рис. 12).


    Рис. 12. Ленточный фундамент из бутового камня: 1 — кирпичная кладка стены; 2 — гидроизоляция; 3 — бутовый камень; 4 — утрамбованная песчаная подушка; 5 — уплотненный грунт; 6 — песок; 7 — засыпка; 8 — отмостка; 9 — глубина промерзания.


    Он предназначен под стены из тяжелого материала (камня, кирпича, бетона). Ленточный фундамент прочен и надежен. При изготовлении такого фундамента состав используемых цементных растворов должен соответствовать характеру грунта.

    На маловлажном грунте с уровнем грунтовых вод ниже 3 м используют раствор следующего состава: цемент марки 100, известковое тесто или глина и песок в соотношении 1:0, 5:5.

    На влажном грунте с уровнем грунтовых вод 1–3 м используют раствор из указанных компонентов, но в соотношении 1:0, 3:3,5.

    При насыщенном водой грунте с уровнем грунтовых вод до 1 м используют раствор следующего состава: цемент марки 150 и песок в соотношении 1:2,5.


    Приготовление бетона. Для получения качественного бетона необходимы технически чистый песок, гравий и вода. Приготавливая бетон, очень важно соблюдать нужное соотношение песка, гравия и воды (гравия должно быть больше, чем песка, в 1,5–2 раза; вода должна составить 60–75 % массы цемента). Зимой для ускорения затвердевания бетона следует использовать воду, подогретую до 40–50 °C. Летом пользуются холодной водой, предотвращающей быстрое «схватывание».

    Для бетонной смеси подготовьте железную емкость или (в крайнем случае) лист железа. Вначале в емкость засыпьте песок в нужном количестве, затем — сухой цемент. После этого смесь хорошенько перемешайте и добавьте гравий или щебень в нужном соотношении. Смесь снова тщательно перемешайте и осторожно залейте водой. Размешав массу до однородного состояния, используйте ее для заполнения опалубки.

    При качественном перемешивании смеси и уплотнении (трамбовании) прочность полученного бетона увеличивается вдвое.

    Приготавливая раствор, размешивайте его не лопатой, а четырехзубыми вилами. Это намного облегчит работу. Раствор получится более однородным.


    Способы изготовления ленточного фундамента. Надежность фундамента зависит от его конструкции, применяемых строительных материалов и хорошей гидроизоляции.


    Способ 1. В приготовленную траншею засыпьте слоями по 15–20 см гравий, крупнозернистый песок, утрамбовывая и поливая водой каждый слой. Дойдя до уровня земли, траншею полейте сверху жидким цементным раствором. Затем возводите цоколь из бутового камня или кирпича. Этот цоколь изолируйте от влаги двумя слоями рубероида.


    Способ 2. В приготовленную траншею засыпьте слоями по 15–20 см гравий, крупнозернистый песок только до половины. Затем поверхность засыпки выровняйте и уложите на нее в один ряд кирпичи. Сделайте съемную опалубку из досок или рам, обитых обрезками шифера. Желательно пропитать деревянную опалубку антисептиком высушить и покрыть гудроном.

    Щиты опалубки скрепите друг с другом в вертикальном положении при помощи деревянных связок или кусочками доски. Если вы используете опалубку из шифера, то установите ее внутрь. Это значительно облегчит укладку и уплотнение бетона.


    Способ 3. На плотном грунте листы с шифером можно ставить в траншею без рамок «внахлест», скрепив верхние концы листов шифера съемными связками. Пространство между шифером и стенками заполните песком и утрамбуйте. В опалубку забросьте до половины песок и гравий, утрамбуйте, а сверху заполните бетоном. Укладку и трамбование бетона ведут слоями не шире 15 см. Трамбовать надо до тех пор, пока поверхность бетона не заблестит от выступившего цементного молока.


    Баня требует хорошей теплоизоляции. Поэтому лучшими материалами для ее фундамента служат керамзитобетон, шлакобетон и бетон с другими теплоизоляционными заполнителями.

    Через 2–3 часа после завершения работы фундамент покройте промокаемыми материалами (мешковиной, рогожей, опилками, стружками) и обильно полейте. Летом нужно поливать бетонный фундамент в первые 2–3 суток через каждые 3–4 часа. После полива бетон закройте полиэтиленовой пленкой. После того, как бетон «схватится» и затвердеет, опалубку снимите (через неделю при температуре наружного воздуха 10–15 °C). Пазухи вокруг фундаментов заполните грунтом, лучше глиной, и тщательно утрамбуйте его. После этого выполните отмостку. По верху фундамента уложите гидроизоляцию из двух слоев толя или рубероида.

    Столбчатый фундамент

    Столбчатый фундамент выполняют под деревянные стены бани из тех же материалов, что и ленточный. Такой фундамент в два раза дешевле ленточного.

    В качестве столбиков используйте деревянные сваи, металлические и асбестоцементные трубы, заполненные бетоном в крайнем случае используйте валуны (рис. 13).

    Поставьте столбики под углы стен, в местах их пересечения, под стойками каркаса, несущими простенками, прогонами, балками и другими местами сосредоточенной нагрузки. Если между основными столбами расстояние более 2 м, то поставьте еще промежуточные столбы.

    Кирпичные основные столбы обычно делайте размером 38×38 см, промежуточные — сечением 38×25 см. Иногда используют столбы в два кирпича. Под кирпичные столбы насыпьте песчаную подушку на половину глубины траншеи, утрамбуйте слоями по 10–15 см и полейте водой.


    Рис. 13. Фундамент из природного камня: 1 — камень; 2 — гидроизоляция; 3 — глиняная отмосща.


    Иногда для изготовления столбчатого фундамента под баню используют деревянные столбы, предварительно покрытые расплавленным гудроном. В народе их называют «стульями» (рис.14).


    Рис.14. Деревянный стул с крестовиной: 1 — крестовина; 2 — бревно; 3 — гидроизоляция.


    Комлевую часть дерева диаметром 20–40 см («стул с лежнем») или деревянную крестовину («стул с крестом») пропитывают антисептиком или раствором медного купороса и просушивают. Затем покрывают гудроном, обворачивают полиэтиленовой пленкой или рубероидом. После этого устанавливают в вертикальном положении на чурбак и фиксируют крепкими косынками-стяжками.

    Для того, чтобы врытые в землю деревянные столбы не подгнивали, старорусские мастера обжигали их концы на открытом огне до обугливания и после этого несколько раз смачивали скипидаром.

    Деревянные фундаменты недолговечны и служат обычно 5 лет, дубовые — до 10 лет. Поэтому для бани удобнее всего использовать готовые бетонные столбы или асбестоцементные трубы, заполненные бетоном.

    Изготовление бетонных столбов

    Способ 1. Для столбчатых фундаментов сделайте вручную или с помощью механического автобура квадратные или круглые ямы с вертикальными стенами с поперечными размерами не менее 30 см. Затем установите опалубку, предварительно смазанную любой незатвердевающей смазкой. Уложите арматуру и залейте бетон, хорошенько утрамбуйте и выдерживайте до затвердения, после чего разнимите. Для увеличения несущей способности столбчатых фундаментов нижнюю часть ям можно расширить и заполнить утрамбованным щебнем, а по верху столбиков соорудить замкнутый монолитный железобетонный пояс — ростверк.


    Способ 2. Можно сделать опалубку из кровельного железа в форме трубы диаметром 20 см или асбестоцементных труб. Они имеют высокую прочность, удобны в работе и не поддаются вспучивающемуся зимой грунту.

    Для предотвращения примерзания грунта асбестоцементную трубу снизу смажьте минеральным маслом, затем вставьте в приготовленную скважину, засыпав песком скважину снаружи. В опалубку вложите арматуру из толстой проволоки и залейте 2–3 ведра бетона. Уплотнив бетон, достаньте опалубку. Затем снова засыпьте снаружи песком и залейте внутреннюю полость бетоном. Таким образом, изготавливается фундаментный столб нужной высоты (рис. 15).


    Рис. 15. Столбчатый фундамент в скользящей опалубке: 1 — скользящая опалубка; 2 — бетон; 3 — песчаная засыпка; 4 — отмостка.


    Под наружной стеной бани и внутренней стеной парной между столбами фундамента на глубину 25–30 см выложите кирпичные стены в один кирпич или в полкирпича выше уровня земли на 20–40 см. Эти фундаментные стены выравнивают цементным раствором и обязательно покрывают гидроизоляцией. Снаружи фундамента укладывают и утрамбовывают глиняную отмостку.

    Некоторые дачники между фундаментными столбами делают насыпи из обрезков шифера, шлака, гравия. Для этой цели изготавливают деревянные опалубки. Их устанавливают так, чтобы выступающие концы охватывали фундаментные столбы. Внутри рамы укладывают 2 ряда обрезков шифера, углубляя нижние концы в землю и утрамбовывая ее. Между рядами шифера прокладывают теплоизоляционную минеральную массу.

    Бревенчатые и брусчатые стены бани

    Бани с деревянными стенами считаются лучшими банями. Бревенчатые и брусчатые стены хорошо пропускают воздух и пар, держат тепло и своеобразный аромат дерева. Внутри такой бани тепло и сухо. В бане, сложенной из бревен или бруса, естественная вентиляция. Даже без дополнительной вентиляции в ней сохраняется приятная атмосфера. Кроме того, деревянная баня имеет уютный вид. Дерево обладает магической силой. Находясь в бревенчатой бане, мы чувствуем себя ближе к природе.

    Бревенчатые и брусчатые стены наиболее теплые, прочные и имеют малую звукопроводимость. Однако чтобы сложить такую баню, необходима работа опытных мастеров, плотников высокой квалификации. Выгодно строить такую баню из бревен разбираемых строений.

    По конструкции брусчатые стены проще бревенчатых. Современные технологии по обработке древесины позволяют получить брус хорошего качества.

    Подготовка бревен

    Первым делом подготавливают бревна. Сначала начерно протесывают ошкуренные бревна «под скобу». Разница между верхним и нижним диаметрами должна быть не более 3 см. Совершенно непригодны бревна с верхним диаметром менее 19 см для устройства открытых срубов в средней полосе.

    Если вы делаете сруб из более тонких бревен, то впоследствии их нужно обшить снаружи теплой штукатуркой. Учтите то, что сруб садится в течение 3 лет. Поэтому спустя этот срок вам придется его переконопачивать.

    Нарежьте подобранные бревна соответственно длине стен. Многие строители вынуждены на этом этапе производить «раскомплектовку». Это происходит по причине конической формы бревен. В этом случае сделайте подбор толстых и тонких концов в одном углу. Обрежьте торцы строго перпендикулярно оси бревна. В противном случае устройство «лапы» будет затруднено, а угол сруба будет выглядеть некрасиво.

    Складывание сруба из бревен

    Рубленые стены бани собирают так же, как стены изб (толщина стен из бревен — 14–16 см, из бруса — 10–14 см). Они состоят из отдельных венцов, горизонтально уложенных друг на друга и соединенных между собой вставными деревянными шипами, размещенными через 1–1,5 м по длине в шахматном порядке по высоте стен.

    Сруб складывают из венцов. В стены с окнами подберите 5 нижних венцов и, в зависимости от толщины бревен, 2 или 3 верхних. В стены, имеющие только двери, подготовьте 2 нижних венца и 5 верхних. Примерно на середине высоты стены будет уложен еще один сплошной венец, который вы затем вырежете в проемах. Нижний венец — оклад — делают из более толстых бревен сосны, дуба или лиственницы, остальные — рядовые, с меньшим сечением.

    На фундамент, покрытый гидроизоляцией, уложите нижний венец. Используйте для этого поперечные брусья в качестве подкладки. Их и нижнюю сторону венца обработайте антисептиком, высушите и покройте слоем гидрозащитной мастики.

    Торцы окладных бревен и брусьев не покрываются гидрозащитной мастикой для того, чтобы дерево «дышало».

    Между фундаментом и окладом образуется зазор. Его нужно заложить кирпичом и залить цементным раствором, предварительно покрыв бревна двумя слоями рубероида в местах контакта с раствором.

    Стык бревен верхнего венца делайте косым натяжным замком с зубом. Можно стыковать короткие бревна вертикальным гребнем, не более одного стыка на венец, во всех венцах, кроме нижнего. При этом стыки не должны располагаться друг над другом.

    Разметка вертикальных диаметров бревен

    Следующий этап после подборки бревен — разметка вертикальных диаметров бревен с обеих сторон. Эту операцию делают для получения правильной разметки «лапы» или гребней и отеса кромок бревна. Иначе обязательно получится перекос. Вам придется выполнять длительную и трудоемкую подгонку врубки.

    Размечайте диаметры при помощи тяжелого отвеса. Прикладывайте его к обоим торцам бревен точно посередине. Очертите карандашом линию отвеса.

    При складывании сруба из бревен получается выход их концов за пределы стен. Очень давно русские плотники назвали такое выполнение углов «в чашу» или «в обло». Это соединение концов бревен проверено временем, оно делает сруб прочным и хорошо защищает углы от ветра и дождя. С помощью шаблона, который делается из фанеры, толстого картона, нужно разметить «закрой «лапы».

    Для примера опишем способ вычерчивания «лапы» для бревен со средним диаметром 22 см (рис. 16)


    Рис. 16. Вычерчивание шаблона «лапы»: 1 — квадрат, вычерченный по среднему радиусу бревна; 2 — вычерчивание шаблонов; 3 — готовые шаблоны; 4 — расчерчивание «лапы» на бревне: А — торец, В — закрытая боковая «лапа», С — боковины, D — готовая «лапа».


    Вычертите на листе бумаги две одинаковые окружности диаметром, равным среднему диаметру бревна. Если ваши бревна обработаны «под скобу», то средний диаметр будет равен диаметру любого бревна.

    Средний диаметр придется вычислять при бревнах разной толщины. Например, в углу сходятся 30 бревен, сумма их диаметров — 690 см. Это число (690) делят на 30 (690:30). Получается 23 см. Это и будет средний диаметр. Проведите через центр две линии при помощи угольника (одна линия должна быть перпендикулярна другой) и соедините точки их пересечения с окружностью. Получится квадрат.

    Затем разделите его две вертикальные противоположные стороны на 8 частей, две другие — на 2 части. После этого проведите вертикальную линию через 2 последние точки. Эта линия будет совмещаться с проведенным вертикальным диаметром при перенесении на торец бревна.

    Соедините линиями стороны, разделенные на 8 частей. Один шаблон получается со сторонами 6/8 и 4/8, другой — со сторонами 6/8 и 2/8.

    Наклейте полученные шаблоны на фанеру. Вырежьте их и сделайте маленькие вырезы в местах, где была проведена вертикальная линия. Для удобства пронумеруйте готовые шаблоны. Размечая раскрой бревна, первый шаблон приложите к торцу бревна точно посередине. Постарайтесь совместить вырезы с прочерченным вертикальным диаметром. Затем обведите шаблон по контуру.

    Раскрой бревна

    После того как вы расчертите торцы, приступайте к обработке бревна. Сначала нужно обтесать его с обеих сторон на длину в полметра. Причем нужно протесать сторону бревна, обращенную внутрь сруба. Расчертите остальные части «лапы» на получившихся протесанных боковинах бревна. Для черчения по бревну приобретите специальный плоский плотницкий карандаш. Можно использовать синие толстые шестигранные карандаши с прочным грифелем.

    В бревнах со средним диаметром менее 22 см соответствующие стороны квадратов делите на 12, а не на 8 частей. Затем соедините их таким образом, чтобы получились шаблоны: один со сторонами 8/12 и 6/12, а другой со сторонами 6/12 и 4/12.

    Сделайте вырез «лапы» в крайних нижних и верхних венцах только со стороны прилегания соседних венцов.

    Для того чтобы получилась точная посадка «лапы», сделайте подтесывание постели бревна к верху нижележащего бревна. Проще делать плоское притесывание бревен вместо полукруглого паза. Ширина протесанной постели бревна должна быть равна его радиусу. В этом случае ваш сруб будет плотным.

    Для утепления пола делайте стенки между столбами фундамента из вертикальных и горизонтальных коротких бревен, соединенных плоским сплачиванием.


    Рис. 17. Размещение шкантов по длине бревна и в простенке.


    Горизонтальные венцы соедините между собой обычными шкантами, требующими точного долбления смежных сторон соседних бревен; шканты могут быть заменены нагелями из проволоки диаметром 8–10 мм, забиваемыми в просверленные отверстия через 2 м (рис. 17).

    Самым простым и надежным является соединение «в торцевой шпунт», когда шип на торце одного бревна входит в паз боковой стороны на конце другого бревна (рис. 18).

    Во избежание нарушения горизонтальности бревен в каждой стенке бревно должно ложиться комлем в противоположную сторону от предыдущего.

    С нижней стороны у каждого бревна обязательно сделайте паз, которым уложите бревно на круглую поверхность предыдущего бревна. Для предупреждения выпучивания бревен из плоскости стены соседние бревна соедините друг с другом штырями (шкантами).


    Рис. 18. Угловые соединения бревен: 1 —соединение бревна с балкой перекрытия; 2 — в «лапу», 3 — в «чашу»; 4 — соединение внутренней стены с наружной.

    Оконопачивание стен

    Подогнав бревно, установите его на паклю по всей длине, кроме «лапы», которая должна быть плотной. Вам понадобится на один метр паза 350–400 г пакли. Углы утеплите вертикальными досками. Предварительно уложите под них два слоя рубероида или один слой пакли.

    Если нет пакли, возьмите мох. Храните его в куче — этим самым вы защитите мох от высыхания. Сухой мох непригоден, так как он становится ломким. Поэтому перед укладкой мох смочите из лейки раствором зеленого масла с мылом: 0,5 л масла и 200 г мыла на ведро воды.

    После устройства крыши бани можно законопатить пазы между бревнами. Для этого заполните пазы паклей или мхом вручную, без молотка, затем — дорожником или конопаткой, что придаст пакле форму валика. Подбирать и направлять паклю можно вдоль паза врастяжку. Можно ее набирать складками и подбивать поперек бревна. Этот способ оконопачивания называется внабор. Он требует больше пакли и применяется при широких пазах.

    Чтобы сократить трудоемкость работы и обеспечить ее качество, приобретите нужный инструмент: кривую конопатку для законопачивания углов, дорожник и специальный окованный молоток мушель.

    После высыхания сруба швы между бревнами становятся более широкими. Поэтому следующее оконопачивание стен сделайте через год. Осадка рубленых стен — 15 см на 3 м высоты. Поэтому над дверными и оконными проемами оставьте зазор высотой, равной 5 % от высоты проема. Заполните зазор над дверными и оконными проемами и углы сруба паклей и закройте доской.

    Сборка стен из бруса

    Стены из брусьев сложить значительно проще. Для этой цели используют брусья сечением 150×150 и 150×180 мм.

    Соедините брус «в лапу», в торцевой шпунт или за счет установленных в углах шкантов, которые сделайте из дуба или смолистого хвойного дерева длиной 100 и диаметром 20–25 мм и установите не только по углам, но и в середине бруса (рис. 19).

    Завершают складывание стен верхним венцом (мауэрлатом). Его функция — опора для потолка и крыши. Поэтому мауэрлат должен быть выполнен качественно. Подберите для него стройные и крепкие брусья или бревна.


    Рис. 19. Угловые соединения бруса: 1 — соединение внутренней стены с наружной на шкантах; 2 — соединение на шпонках; 3 — соединение на шкантах; 4 — пересечение стен на шпонках; 5 — пересечение стен на шкантах; 6 — соединение внутренней стены с наружной на шпонках; 7 — соединение балок перекрытий со стенами.

    Монтирование оконных и дверных коробок

    Оконные и дверные коробки соедините со срубом пазом, в который входят гребни бревен сруба, пропиленные ножовкой с высоко расположенной ручкой. После этого вырубите топором с торцов по предварительной разметке.

    Установите нижний брус с подоконной доской на пакле. Следующая операция — вставка боковых стоек. Для этого подготовленные стойки плотно вбейте в гребни на паклю и затем вставьте верхний брус. Сопряжение подоконника и боковых отсеков должно быть очень плотным (для защиты от дождя и снега). Для предотвращения загнивания коробку обтяните по наружному контуру двумя слоями рубероида.

    При изготовлении или покупке оконных переплетов, помимо качества работы, обращайте внимание на их рисунок. В бане делайте небольшое окно со стеклами в толстых рамах, пропускающими мало света. Оконные коробки устанавливайте в стенах тщательно, с выравниванием по отвесу и уровню и оконопачиванием (желательно использовать заполнители, изготовленные с помощью современных технологий) щелей между проемом и коробкой.

    Обшивка стен

    Сложенные стены должны немного осесть. Только после этого обшейте их «вагонкой» толщиной 16 мм с одной или с обеих сторон. Желательно, чтобы они имели шпунтовку или фальцовку. Крепите «вагонку» по рейкам, прибитым к стене. Между обшивкой и стеной образуется зазор, облегчающий сушку обшивки после банных процедур. С внутренней стороны между брусом и «вагонкой» проложите пароизоляцию из фольги, пергамина.

    Моечную комнату можно снизу обшить влагонепроницаемым материалом.

    Каркасные стены бани

    В последнее время широко распространены бани с каркасными или панельными стенами (рис. 20). Бани такого типа наиболее экономичны по стоимости. На них требуется лесоматериала примерно в 5 раз меньше, чем для рубленой бани. Кроме того, каркасная баня более теплая. По эксплуатационным свойствам каркасные стены не уступают обычным срубам.


    Рис. 20. Стены: А — каркасные; В — панельные; 1 — стойка; 2 — обвязка; 3 — брусок; 4 — минераловатные плиты или другой утеплитель; 5 — пергамин; 6 — доска; 7 — отделочная доска.


    Сооружая каркасную баню, сначала ставят на фундамент каркас бани с крышей, а затем фундамент обшивают снаружи и изнутри с заполнением пространства между обшивками утеплителем.

    Каркасные стены из бревен

    Каркас стен бани (нижняя и верхняя обвязки, стойки) делайте из бревен, обтесанных на четыре канта, в которых выбирайте пазы шириной и глубиной 5–6 см (рис. 21).

    Бревна имеют на концах гребни, которые вставляют в эти пазы. Стойки каркаса соедините с обвязками потайным шипом и скрепите дополнительно скобами, обвязку в углах делайте «в полулапу» (рис. 22).

    На гидроизоляционный слой поверх цоколя точно по уровню уложите нижнюю обвязку. На нее также строго по отвесу установите угловые стойки и сверху расшейте их прочными 5-сантиметровыми досками, а с земли укрепите подкосами. Нарезанные по размеру бревна с гребнями вставьте сверху на паклю.


    Рис. 21 Каркас стен из бревен.


    Рис. 22. Соединение обвязки «в полулапу».


    После установления всех бревен насадите верхнюю обвязку, наколачивая ее деревянным молотком на верхние шипы стоек. Желательно, чтобы бревна, установленные вертикально, были сухими. В этом случае конопатить их нужно один раз. Для таких стен могут применяться тонкие бревна.

    По мере осадки стен из горизонтальных бревен необходимо заполнять зазор, образующийся вверху, досками и паклей, которые снаружи следует закрыть подшивкой карниза.

    Каркасные стены из бруса

    Уложите на фундамент гидроизоляцию из двух слоев рубероида, а на них — брусья нижней обвязки сечением не менее 150×150 мм (рис. 23).

    Соедините их в углах в четверть и скрепите гвоздями. Точно так же соедините балки под внутренние стены. Параллельно с этой работой можно выполнять укладку лаг. Некоторые плотники для удобства сооружения стен настилают на лаги временный пол.

    Затем установите стойки из брусьев сечением 100×100 мм. Закрепите нижние концы столбов в углублениях обвязки деревянными и металлическими стержнями. Для того чтобы они стояли строго вертикально, зафиксируйте их раскосами из досок или брусков. Укрепите гвоздями по два раскоса на угловых стойках в разных направлениях.


    Рис. 23. Каркас стен из бруса: 1 — стойка; 2 — раскос; 3 — балка верхней обвязки; 4 — дополнительная стойка для дверной коробки; 5 — продольный брус; 6 — балка нижней обвязки; 7 — фундамент.


    Каркас должен иметь между стойками промежуток в 1 м. Для крепления оконных и дверных коробок поставьте дополнительные стойки в местах, где будут окна и двери. Брусья верхней обвязки, закрепленные сверху на стойках, скрепите между собой и стойками аналогично нижней обвязке.

    Обшивка каркаса

    Снаружи каркас обшейте досками, положив под них гидроизоляцию и располагая под углом к горизонтальной линии. Это будет способствовать жесткости конструкции. Опытные плотники в одной части стены располагают доски обшивки в одну сторону, а в другой части — в противоположную. При обшивке прибивайте доски непосредственно к каркасу. В последнее время часто делают наружную облицовку из кирпича в половину или четверть его толщины. При этом через 3–5 рядов кирпичную кладку нужно привязывать проволокой к стойкам каркаса.

    Для внутренней обшивки используйте асбестоцементные плиты, доски, водостойкую фанеру. Пространство между обшивками заполните утрамбованной арболитовой массой послойно, по мере наращивания обшивки. Для того чтобы облегчить укладку утеплителя, одну внешнюю стену обшейте полностью, а после этого уложите утеплитель, постепенно поднимая в высоту обшивку с внутренней стороны. Затем сравняйте стены по стойкам каркаса и уложите брусья верхней обвязки с гидроизоляцией. В заключение соедините друг с другом и со стойками.

    Каркасные стены можно заполнить жердями или тонкими бревнами, зазоры между ними — смесью глины с опилками, мхом, замоченным в известковом растворе. Очистите жерди от коры и закрепите их в проемах, образованных досками или брусьями.

    При устройстве каркасных стен с засыпкой особое внимание обратите на сооружение цоколя с уступом ниже уровня нижней обвязки. Он нужен для опоры наружной облицовки стен бани. Таким образом вы защитите от влаги нижнюю обвязку и засыпку.

    Утепление, гидро- и пароизоляция каркасных стен

    С внутренней стороны на каркас обязательно уложите пароизоляцию из слоя пергамина, рубероида или полиэтиленовой пленки, которую прижмите косой обшивкой из колотых досок толщиной 25 мм.

    Между бревнами и обшивками можно проложить теплоизоляцию из камышовых плит толщиной 15 см, пропитанных 3-процентным раствором железного купороса против загнивания. Они имеют много достоинств: легкие, с хорошими теплоизоляционными свойствами не горят, а тлеют. Можно изготовить камышовые плиты самим, прошивая каждые 2 см материала оцинкованной проволокой диаметром не менее 1,6 мм. Подготовьте плиты длиной равной высоте стен. С обеих сторон закройте их асбестоцементными плоскими плитами. Можно оштукатурить стену.

    Неплохой утеплитель получается из опилок, перемешанных с гипсом или с известью в пропорции 10:1 и засыпанных между наружной и внутренней обшивками слоем в 20 см. Главное требование — опилки должны быть сухими.

    После того, как вы уложите первый слой опилок, залейте его раствором железного купороса в воде (25 г на ведро воды), постоянно размешивая. После этого слой опилок нужно слегка уплотнить. Со временем слой схватывается и не проседает.

    Наиболее надежный и распространенный утеплитель — арболитовая масса.

    Панельные стены бани

    В наши дни при возведении дачных домов и бань широко применяются стеновые панели заводского изготовления. У них много преимуществ: легкость, надежность, быстрота сборки. Сборные бани можно переделать, разобрать, установить в другом месте. Они предоставляют большие возможности для разнообразия конструкции и оформления фасада бани. Собирают стеновые панели с каркасом и без него.

    Панели состоят из деревянного каркаса — рамы, изготовленной из брусков. Этот каркас обшивают с одной стороны древесноволокнистой плитой или необрезными досками, вложив во внутрь пароизоляцию из пергамина и минераловатных плит, с другой стороны — древесноволокнистыми плитами (ДВП). Полученную панель крепят к нижней и верхней обвязкам так, чтобы на внутреннюю часть приходилась обшивка, на которую уложен пергамин. После установки всех панелей баню обшивают снаружи вагонкой или обкладывают кирпичом. Изнутри — водоотталкивающим материалом или строгаными досками.

    Для стен бани требуются три типа панелей:

    — глухие панели в виде рамы, обшитой с обеих сторон досками или горбылем;

    — панели с дверью, которая имеет размер 60×100 см. Двери можно делать со встроенными окнами размером 25×35 см;

    — панели с окном.

    Подготовка панелей

    Для сооружения панельной бани можно приобрести готовые панели длиной 1850–2100 мм и шириной 600–1200 мм. Если у вас нет такой возможности, то изготавливайте панели сами, предварительно определив высоту бани. Длина панели должна равняться высоте бани. Для определения ширины панели, измерьте отдельные части стен по горизонтали и уточните количество панелей. Вес одной панели не должен превышать 100–120 кг. В противном случае с ней будет трудно работать без дополнительных приспособлений.

    Для изготовления панели подготовьте брусья или доски толщиной не менее 30 мм, шириной не менее 60 мм. Обшивать панели лучше вагонкой толщиной 16 мм. Некоторые мастера используют вместо вагонки доски толщиной 10–12 мм, располагая их поперек рамы. Панели для внутренних перегородок должны быть тоньше.

    Изготавливая панель между парной и моечной, можно обойтись без укладки утеплителя. Высота порога перед дверью должна быть не менее 20 см.

    Установка панелей

    Устанавливайте панели на брусья нижней обвязки, предварительно покрытые гидроизоляцией. При этом делайте напуск в обе стороны на 3–5 см. Предварительно закрепите панели с брусьями в вертикальном положении упорами. Затем сбейте их гвоздями с косым забоем и сделайте верхнюю обвязку, скрепив панели с досками толщиной не менее 20 мм или положив на панели брусья обвязки. В последнем случае соедините их гвоздями и штырями.

    Обшейте швы между панелями и брусьями обвязки деревянными рейками или строгаными досками, заполнив паклей пространство между ними.

    Обшивка панельных стен

    Снаружи панельные стены можно обшить асбестоцементными плоскими плитами, плотными древесностружечными плитами (ДСП). Изнутри парной и моечной — строгаными досками (внутри моечной и предбанника — водостойкой фанерой, ДВП, пластиком).

    Стены моечной с невысокой температурой можно зашить плоскими стеклопластиковыми листами или волнистым стеклопластиком. Стыки закройте герметиками.

    Утепление, гидро- и пароизоляция панельных стен

    Под наружную деревянную обшивку уложите гидроизоляцию, а под внутреннюю обшивку — пароизоляцию.

    В качестве утеплителя используйте наиболее легкие материалы: минеральную вату, пенопласты, плиты из камыша. Органические материалы должны быть обработаны против гниения и для повышения огнестойкости известковым молоком и высушены.

    Защита деревянных конструкций бани

    Приступая к строительству деревянной бани, примите меры по ее защите от всевозможных повреждений. Известно, что древесина деформируется, растрескивается, гниет, горит. Поэтому, заготавливая лес для бани, придерживайтесь следующих рекомендаций:

    — валите деревья зимой, когда в стволах не идет сок. В это время они менее восприимчивы к образованию гнили, а во время сушки не так сильно коробятся;

    — вывозите из леса заготовленные бревна как можно быстрее;

    — ошкуривайте лес не позднее 2 недель после вывоза;

    — для предупреждения растрескивания торцов, снимая кору у верхнего и нижнего отрубов, оставляйте пояски из коры шириной не менее 10 см, а торцы пропитывайте различными защитными составами;

    — сушите пиломатериалы на открытом воздухе, уложив их на деревянных или каменных опорах высотой не менее 50 см в штабеля на деревянные перекладины. Деревянные опоры пропитайте антисептиком. Над штабелем соорудите односкатную или двухскатную съемную кровлю из досок или асбестоцементных листов. Таким образом вы изолируете пиломатериалы от грунта, камня и бетона, от грунтовых вод и атмосферных осадков.

    Деревянные конструкции сложенной бани должны быть доступны для профилактического ремонта, защитной обработки древесины, проветривания.

    Обязательно изолируйте деревянные поверхности бани от касания с каменными и другими конструкциями из более теплопроводных, чем дерево, материалов, водонепроницаемыми прокладками из толя или рубероида.

    На потолке бани возможно выпадение конденсата. Во избежание этого утеплите потолок и проложите паро- и гидроизоляцию. Уложите между каркасом и обшивкой сплошным непрерывным слоем рулонные пленочные материалы — пароизоляции у внутренней (теплой), теплоизоляции — у наружной (холодной) поверхностей.

    Утеплите и уплотните швы между ограждающими конструкциями; исключите влагонакопление в наружных ограждающих конструкциях отапливаемых помещений в процессе эксплуатации; предусмотрите устройство вентиляционных продухов в панелях стен и конструкциях покрытий, сообщающихся с наружным воздухом, и использование пароизоляции.

    Наружные деревянные конструкции защитите обработанными антисептиком досками, коньками и козырьками из оцинкованного кровельного железа или другого атмосферостойкого материала. Во избежание увлажнения деревянных конструкций покройте их олифой.

    Для защиты древесины от гниения пропитайте ее веществами, убивающими болезнетворные организмы и придающие древесине биологическую стойкость.

    Для борьбы с насекомыми внутренние деревянные, не защищенные красками и лаками конструкции бани пропитайте водным раствором фтористого или кремнефтористого натрия, пораженную древесину обработайте специальными жидкостями, маслами и окурите газами. Антисептирование древесины производите путем окунания и вымачивания в растворах, с помощью поверхностной обработки — обмазки кистями или опрыскивания.

    Пропитывайте антисептиком только хорошо высушенные, остроганные с пазами, врубами, отверстиями древесные материалы. Антисептическими пастами защитите элементы, увлажнение которых происходит в процессе эксплуатации (концы балок, заделываемых в стены, концы столбов, закапываемых в землю). Элементы, обработанные пастой, дополнительно изолируйте. Для антисептирования труднодоступных мест конструкций (отверстия, пазы и др.) можно использовать шприц.

    Не забывайте, что по пропитываемости антисептиками древесные породы подразделяются на три группы:

    1) легкопропитываемые — заболонь березы, бука и сосны;

    2) умеренно пропитываемые — ольха, осина, заболонь дуба, клена, липы, ядро сосны;

    3) труднопропитываемые — ель, ядро березы, дуба, бука, ясеня.

    Защита от промерзания наружных стен

    Наружные стены бани могут промерзнуть по следующим причинам:

    — недостаточная паро-, гидро- и теплоизоляция стен, пола и потолка;

    — плохая герметизация стыков и примыканий оконных, дверных коробок стен;

    — повышенная влажность воздуха вследствие чрезмерного пользования водой.

    Для дополнительного утепления стен прибейте к ним плиточные утеплители — антисептированные ДВП, полистирольный пенопласт (ПСБ и ПСБ-С), формальдегидный пенопласт (ФРП-1 и ФСЛ). Затем уложите па-роизоляцию и обшейте доской.

    Защита дерева от плесени и гниения

    Плесень может появиться на деревянных поверхностях бани по следующим причинам:

    — плохая гидроизоляция;

    — плохая вентиляция;

    — нарушение температурно-влажностного режима;

    — недостаточное утепление полов;

    — промерзание стен и ограждающих конструкций.

    Поэтому, построив баню, проверьте работу вентиляционных каналов с помощью подожженной полоски бумаги. Нормально работающий канал втягивает пламя достаточно хорошо. Проверьте исправность слива воды.

    Если в процессе эксплуатации бани плесень все же появилась, то удалите ее, промыв пораженную поверхность дерева, зачистив ее шпателем. Затем хорошенько просушите баню.

    В зависимости от породы и структуры древесина делится на четыре класса стойкости против гниения:

    1) стойкая — сосна, ясень, ядро дуба и лиственницы;

    2) среднестойкая — ель, пихта, заболонь кедра и лиственницы;

    3) малостойкая — заболонь березы, бука, дуба, клена, ядро вяза;

    4) нестойкая — ольха, осина, заболонь липы, ядро березы.

    Для борьбы с гниением используйте простой способ: обжигайте на огне те части материалов, которые будут находиться в земле. Можно обжечь и нижние стороны окладных венцов рубленых стен, обмазать их битумом и просмолить.

    Защита от возгорания

    От возгорания защищают лишь деревянные конструкции на готовом чердачном перекрытии.

    Деревянные поверхности можно оштукатурить, заделать тонкими листами жести или асбеста, наклеить фольгу, обработать полимерами (фенольными, карбамидными, фурановыми), кремнийорганическими растворами. Нанесенные на поверхность фосфатные покрытия твердеют и становятся огнестойкими.

    Кирпичные стены бани

    Наряду с деревянными банями строятся и кирпичные. Кирпичная баня более долговечная и менее пожароопасная. Однако она имеет высокую теплопроводность и медленнее нагревается. Для того чтобы снизить ее теплопроводность, рекомендуется обшить баню изнутри вагонкой, уложив между нею и кирпичной стеной толстый слой тепло- и пароизоляции.

    Выполняйте каменную кладку бани в полтора (38 см) или два кирпича (51 см) с пустотами, обладающего более высокими теплоизоляционными свойствами. Перегородки складывайте в одну четвертую и половину кирпича (6,5 и 12 см).

    Устойчивость стенной кладки зависит от заложенного фундамента. Для перегородок толщиной в полкирпича фундамент требуется только тогда, когда пол не обладает достаточной несущей способностью. В этом случае нужно вырыть траншею для фундамента глубиной не менее 30 см и шириной около 25 см. Вне помещения фундамент закладывают ниже глубины промерзания, т. е. на 0,8–1 м.

    Инструмент для кирпичной кладки

    Каменщику для кирпичной кладки необходимы специальный инструмент и приспособления:

    — кельма для разравнивания и подрезки излишков раствора в швах;

    — лопата для подачи и разравнивания раствора;

    — расшивка для обработки и уплотнения швов кладки;

    — молоток-кирочка с деревянной ручкой для рубки и отесывания кирпича;

    — отвес для проверки вертикальности кладки;

    — уровень для проверки горизонтальности кладки;

    — правило в виде деревянной рейки длиной 1,5–2 м для проверки ровности лицевой поверхности кладки;

    — угольник для проверки правильности складывания углов;

    — шнур-причалка для обеспечения прямолинейности и горизонтальности рядов, одинаковой толщины швов;

    — порядовка для разметки кладки в виде рейки сечением 50×50 мм и длиной около 2 м, на которой через каждые 77 мм нанесены насечки соответственно толщине ряда кладки;

    — скобы с поперечной планкой для крепления порядовки к стене;

    — клинья для закрепления порядовки в скобах;

    — рулетка, складной метр для контроля кладки.

    Кирпичная кладка

    Для выполнения кирпичной кладки необходимы навыки, знание общих ее правил и правил кладки фасадов. При кладке надо учитывать особенности проемов, пустотелых блоков, выполнения швов.

    Цоколи и фундаменты ниже уровня гидроизоляции выполняйте из полнотелого красного кирпича. Выше уровня гидроизоляции цоколи выполняйте из пустотелого кирпича, а стены — из красного и силикатного кирпича. Приготавливая раствор для кирпичной кладки, используйте песок с величиной зерна 1,2–2,5 мм, цемент, известь и воду. Отмеряйте их ведром в нужном объеме. Воду добавляйте до тех пор, пока раствор не распределится по поверхности и не останется незаполненных участков.

    Прочность каменной кладки, помимо материала, зависит от правильности ее выполнения. Каждый ряд кирпича соединяйте с нижним рядом горизонтальным швом толщиной 12 мм, кирпичи внутри одного ряда — стыковыми (вертикальными поперечными и горизонтальными) швами толщиной примерно 10 мм. При этом швы между рядами должны как можно больше перекрываться. В зависимости от расположения кирпича различаются ряды: ложковый, тычковый и из тычков, поставленных на ребро (рис. 24).


    Рис. 24. Расположение кирпича при кладке: 1 — тычок; 2 — ложок; 3 — вдоль; 4 — поперек.


    Расслоению кладки препятствует перевязка швов. Кроме того, последняя способствует равномерному распределению нагрузки. При однорядной перевязке швов чередуются ложковые (кирпичи вдоль) и тычковые (кирпичи поперек) ряды, при многорядной — ложковые ряды перевязываются тычковыми через 3–5 рядов по высоте.

    Ряды кирпичной кладки из тычков, поставленных на ребро, кладите только в качестве верхнего выступа стен. Прочность соединения кирпичей внутри ряда кладки из тычков, поставленных на ребро, большая, поэтому он не так легко разрушается при воздействии механической нагрузки. Этот ряд отличается высокой устойчивостью к атмосферным воздействиям.

    Чтобы соединение было качественным, нужно соблюдать одинаковые размеры во всех рядах и равные основному размеру кирпича плюс толщина стыкового шва. Для хорошей кладки высота каждого ряда с учетом толщины шва в среднем на 12 мм больше толщины кирпича.

    Начало кладки

    Начинайте кладку с установки порядовок по отвесу на углах, в местах пересечения и примыкания стен, а на прямых участках — не далее 10–15 м одна от другой. По порядовкам выложите штрабы (маяки) и натяните шнур для каждого ряда кладки. Чтобы шнур не провисал, через каждые 4–5 м подложите под него маячные кирпичи.

    Кладка углов

    Начинайте кладку первого ряда угла с двух-трех четвертей кирпича, уложенных углом. В малонагруженных частях стен, под окнами используйте половинки кирпичей.

    Во избежание смещения вертикальных швов на четверть кирпича выкладывайте наружную версту первого ряда обеих стен тычковыми, а второго ряда — ложковыми кирпичами. Внутренняя верста первого ряда может быть тычковой или ложковой (в зависимости от толщины стены). Промежутки, образованные в углах трехчетвертями, заложите четвертью кирпича.

    Постоянно проверяйте правильность кладки углов при помощи угольника. Горизонтальность рядов контролируйте правилом и уровнем не менее двух раз на протяжении 1 м кладки. Вертикальность кладки поверхностей и углов проверяйте при помощи правила с уровнем и отвесом. Если вы обнаружите небольшие отклонения, то постарайтесь их исправить в процессе последующей кладки. Не забывайте контролировать толщину швов, замеряя ее через 5–6 рядов кладки (средняя толщина — 12 мм, предельная — 15 мм). Степень заполнения швов проверяйте, извлекая кирпичи из разных мест кладки.

    Если вы не будете оштукатуривать наружную поверхность кладки, то можно расширить швы, придав им одинаковую форму. При помощи расшивки придают швам выпуклую, вогнутую или прямоугольную форму. Кельмой можно сделать односрезную и двухсрезную форму швов. Обычно для бани делают гладкие стены, без напусков и уступов.

    Системы перевязки кирпича

    При возведении кирпичных конструкций используют три системы перевязки кирпича.

    Однорядовая цепная система перевязки получается при чередовании тычковых и ложковых рядов. Поперечные вертикальные швы смещены на четверть кирпича, а продольные вертикальные швы перевязаны на полкирпича. Эта система перевязки проста в исполнении и отличается прочностью кладки. Но она требует больших затрат труда по сравнению с другими системами.

    Трехрядовая система перевязки получается при чередовании трех ложковых рядов и одного тычкового. Вертикальные поперечные швы в трех смежных рядах не перевязываются. Эту систему перевязки применяют при возведении столбов и узких (до 1 м) простенков.

    Многорядовая система перевязки предусматривает тычковые ряды-через пять или три ложковых ряда. Поперечные вертикальные швы тычковых рядов смещаются на четверть кирпича, а в ложковых рядах — на полкирпича. Со второго по шестой ряд включительно продольные и вертикальные швы не перевязываются. Эта система перевязки эффективнее, чем однорядовая, и позволяет использовать для внутренней части кладки половинки кирпича. Но прочность ее меньше, чем прочность кладки с однорядовой системой перевязки.

    Раскладка кирпича, расстилание раствора, кладка перегородок

    Раскладывайте кирпич на стене в том положении, в котором он будет находиться в кладке. От толщины стены зависит способ его раскладки. В стенах толщиной в два кирпича для кладки наружной тычковой версты раскладывайте кирпич стопками (по два) перпендикулярно или под углом 45° к оси стены. Оставляйте между стопками промежуток в полкирпича.

    В стенах толщиной в полтора кирпича для кладки наружной тычковой и ложковой версты стопки из двух кирпичей укладывайте параллельно оси стены. При тычковой версте промежутки между стопками должны быть 1–1,5 см, при ложковой — в один кирпич.

    Если вам нужно сложить стену в один кирпич, то для кладки ложкового ряда стопки кирпича раскладывайте параллельно оси стены. При этом оставляйте промежуток в один кирпич.

    Перед возведением перегородки определите ее положение между основными стенами и обозначьте его вертикальным штрихом. В каждом четвертом ряду основной стены выдолбите отверстие глубиной в четверть или в половину кирпича. Это обеспечит прочное соединение перегородки с основными стенами и сцепление перевязки перегородки. При этом для определения направления стены натягивайте шнур от одной вертикальной линии к другой.

    Особенно внимательно отнеситесь к расстиланию раствора. От этого зависят качество и прочность кладки.

    Отдельно нужно сказать о пересечении стен. Они, конечно же, не проходят одна сквозь другую. При кладке кирпичи одной из стен погружаются в другую на половину или четверть кирпича.

    При однорядовой системе перевязки пересечение стен выполняйте путем поочередного пропускания рядов пересекающихся стен сквозь другую стену. При многорядовой перевязке начинайте пересечение стен со второго ряда.

    Установка перемычек

    Перемычкой называют часть стены, перекрывающую оконный или дверной проем. По своей форме перемычки бывают:

    — рядовые;

    — клиновые;

    — лучковые:

    — арочные.

    Для бани применяют рядовую перемычку. Для ее возведения уложите железобетонную плиту. Затем — раствор и разровняйте его. Выкладывайте первый ряд кирпичей тычковым. После этого продолжайте облегченную кладку.

    Для работы на высоте необходимо соорудить подмостки высотой 1 м. Они имеют вид настила на деревянном каркасе со стойками на расстоянии не более 1,5 м друг от друга, закрепленными раскосами. Подмостки должны обеспечить беспрепятственное передвижение по всему периметру возводимых стен. Устанавливайте подмостки на деревянных подкладках, положенных на предварительно уплотненную землю.

    В целях безопасности поднимайтесь и спускайтесь с подмостков по стремянке с ограждениями. Важно следить за тем, чтобы подмостки не были загружены чрезмерным количеством кирпича.

    Облегченная (колодцевая) кладка

    Для возведения бани наиболее целесообразно делать облегченную кладку общей толщиной примерно 40 см (рис. 25).


    Рис. 25. Облегченная кладка: 1 — внутренняя стенка; 2 — наружная стенка; 3 —диафрагма.


    Она не требует большого количества материала, имеет воздушную прослойку с теплоизоляцией, что способствует сохранению тепла в бане.

    Первый ряд должен лежать на гидроизоляции фундамента поперек. Первые два ряда при любой кладке должны быть сплошными. Кладку у оконных и дверных проемов тоже выполняйте сплошной с выступающими на четверть кирпича частями для закрепления оконных и дверных переплетов. А затем возводите облегченную кладку из двух стенок в полкирпича с промежутком между ними 13–14 см, заполненным теплоизоляцией. Две стены связывайте между собой на расстоянии 1 м поперечными стенками-диафрагмами, расположенными строго под опорами балок перекрытия. В углах, в средней и верхней частях стены для прочности уложите арматурную сетку или проволочные связки. Они служат для соединения кирпичей соседних стенок кладки

    Некоторые каменщики используют стальные прутки диаметром 5–8 мм с загнутыми концами вместо кирпичной диафрагмы, устанавливая их на расстоянии не более полуметра друг от друга.

    В диафрагме устанавливайте кирпич с зазором 2–3 см относительно кирпича соседней стенки. Этот зазор не заливайте раствором (кроме мест оконных и дверных проемов). Впоследствии образовавшееся пространство заполните утеплителем.

    В заключение уложите 3–4 ряда сплошной кладки. Для этого приготовьте металлическую армировку в виде сетки. На последний тычковый ряд кирпичей уложите гидроизоляцию и настенные брусья — мауэрлат. Их функция — опора для балок перекрытия или для нижних прогонов стропил крыши.

    В стенку заделайте стержни (штыри) и прикрепите к ним настенные брусья. Установите балки перекрытия прямо на кирпичи в специальные гнезда. Предварительно концы балок оберните рубероидом. Это защитит их от влаги. Причем торцы балок должны быть открытыми. Затем заполните теплоизоляционным материалом зазоры между балками и стеной.

    Утепление кирпичных стен

    Кирпичные стены бани обязательно нужно утеплять. Для этого заполните слоями до 40–50 см пространство между стенками кирпича в облегченной кладке керамзитом, легким шлаком, смесью опилок, песка и извести-пушонки в весовом соотношении 2:2:1. Поливайте каждый слой сметанообразным известковым раствором.

    Однако рациональнее всего применять плитные утеплители. Крепите их полосками-фиксаторами к внутренней стене или при помощи синтетических связующих. Из плит утеплителя вырежьте полоски и поставьте их в распор к утеплителю к наружной стене на расстоянии полуметра друг от друга. Между утеплителем и наружной стеной должен образоваться воздушный зазор.

    Гидроизоляция кирпичных стен

    При возведении бани из любого материала важна гидро- и пароизоляция. Поэтому нельзя допускать, чтобы кирпичные стены касались грунта. Известно, что кирпич впитывает и пропускает влагу. Во всех местах, где возможно проникновение влаги, нужно устроить гидроизоляцию одним из двух способов: оклеечным или окрасочным.

    Оклеенная гидроизоляция представляет собой приклеивание рубероида и других рулонных материалов к стене дома. Зазоры и щели по периметру проемов окон и дверей обязательно заделайте и замажьте, покрыв нижние части проемов стены гидроизоляцией.

    Окрасочная гидроизоляция выполняется путем обмазывания стен в местах проникновения влаги битумной мастикой. Для приготовления этой мастики используют битум с добавлением талька, асбеста, извести.

    Оштукатуривание кирпичных стен

    Для оштукатуривания стен из кирпича применяют известково-цементные растворы с легкими (теплыми) заполнителями. К ним относятся: просеянные через сито с отверстиями 4 мм шлак, пемза, керамзит. Стены бани можно оштукатурить с обеих сторон. Но с внутренней стороны стены бани вам нужно будет обшить вагонкой.

    Обшивка внутренних стен

    Так как внутренние стены нуждаются в обшивке, то их можно не расшивать и не штукатурить. Для облегчения обшивки внутренних стен деревом желательно вбить в кирпичную кладку деревянные пробки, на которые набиваются рейки.

    Образовавшийся зазор между стеной и рейками нужно утеплить плитными материалами и «одеялами» и проложить пароизоляцию из фольги. Теплоизолирующие одеяла можно сделать из пергамина и минеральной ваты, пакли.

    Для этого предварительно сделайте из досок стол бортами длиной, равной высоте обшиваемой стены, а шириной — равной ширине пергамина. Не забудьте сделать между досками зазоры в 1 см.

    Следующий этап — настил на столе пергамина, теплоизоляционного материала и снова пергамина. Спустя некоторое время через зазоры, оставленные между досками стола, сшейте «одеяло» шпагатом.

    Если вы обшиваете стены бани горизонтальными досками, то вместо вышеуказанных материалов можно использовать насыпной материал (керамзит). Только после этого прибивайте к рейкам вагонку толщиной не более 16 мм.

    При желании можно обшить и наружные стены.

    Облицовка плиткой стен моечной

    Поверхность стены кирпичной бани сначала очистите от пыли и жировых пятен, а затем хорошо увлажните, сровняйте цементным раствором отклонения поверхности от вертикали, выбоины глубиной более 15 мм. Сделайте насечки на штукатурке.

    Деревянные стены бани перед облицовкой обтяните толем или рубероидом. Затем оштукатурьте по металлической сетке цементным раствором с общей толщиной раствора не менее 15 мм. Если вы будете крепить плитку на клеящих мастиках, то тщательно выравнивайте цементной штукатуркой поверхности, подлежащие облицовке независимо от материала, из которого они сделаны.

    Плитки укладывают шов в шов, вразбежку и по диагонали. Для крепления плиток к стенам используйте цементный раствор состава 1:4–1:6 (на 1 объемную часть цемента марки 300 или выше берут 4–6 объемных частей песка). Стены моечной облицовывайте плиткой после пола, так как плитки первого ряда будут опираться о плитки пола.

    Плинтусный ряд выполняйте из специальных плинтусных плиток, которые крепите на растворе только к стене, к полу они должны примыкать насухо. С помощью отвеса сделайте на стенах вертикальную разметку и поставьте в каждом углу два маяка — две плитки: одну вверху облицовки, другую — внизу (на один-два ряда выше уровня пола). Постоянно проверяйте вертикальность и горизонтальность рядов плитки.

    Сначала уложите плитки одного-двух нижних рядов. Для горизонтальной проверки используйте нижние маяки, а для вертикальной — верхний и нижний. На тыльную сторону плитки (на большую ее часть) нанесите раствор ровным слоем такой толщины, чтобы после прижатия плитки к поверхности он немного выступил сверху и сбоку. Наклеенную плитку осадите до уровня шнуров легким пристукиванием ручной лопатки.

    Устанавливая карнизные детали, заполните их раствором с излишком и уложите по верхнему ряду облицовки, осаживая до линии, пробитой натянутым шнуром.

    Свежий раствор с плиток удалите тряпкой. Через двое-трое суток облицовку покройте тонким слоем сметанообразного гипса, тщательно заполняя им швы. Как только гипс немного схватится, облицованную поверхность протрите чистой сухой тряпкой, удаляя гипс с прилипшей к нему грязью.

    Перекрытия бани

    Для цокольных и чердачных перекрытий бани используют деревянные балки и настилы.

    Цокольное перекрытие

    Цокольным перекрытием служат дощатые полы. Настил полов выполняется по балкам или по лагам. Для балок вам нужно приготовить брус или окантованные бревна, которые укладывайте на фундамент с гидроизоляцией.

    При подготовке балок учтите толщину досок пола, расстояния между балками и их длину. Опытные плотники делают расстояние между балками в осях до 60 см, доски для пола при этом должны иметь толщину 28 мм.

    Полы по лагам подвергаются сезонным деформациям от случайных подпольных промерзаний и осадок грунта. Поэтому, если в том месте, где вы ставите баню, грунтовые воды не подходят близко к поверхности земли, можно делать полы по лагам. Полы по балкам можно делать и в местах с мягким грунтом, но они требуют большего расхода материала (рис. 26, 27).


    Рис. 26. Цокольное перекрытие по лагам: 1 — доска пола; 2 — лага; 3 — прокладка; 4 — рубероид; 5 — плинтус; 6 — кирпичный столбик.


    Сначала по утрамбованному грунту установите столбики из полнотелого глиняного кирпича или бетона с расстоянием между ними 40–50 см. Затем уложите балки или лаги на столбики, проложив между ними просмоленные прокладки из обрезков досок, рубероида в направлении «поперек света» и «поперек хода». Следите за тем, чтобы доски пола тоже настилались «вдоль света» и «вдоль хода».


    Рис. 27. Цокольное перекрытие по балкам: 1 — доска пола; 2 — балка; 3 — рубероид; 4 — плинтус.


    Для обеспечения естественной осадки не доводите лаги и доски пола до стен на 20 мм.

    Для настила полов подготовьте строганные с лицевой стороны шпунтованные доски. Предварительно пропитайте их с нижней стороны антисептирующими составами.

    На балки или лаги сначала уложите «черновой пол». На него — гидроизоляцию в виде рубероида. Затем застелите пол слоем утеплителя (минераловатные плиты). После этого на рейки уложите «чистовой пол» (рис. 28).

    Сначала прибивайте доски пола к балкам тонкими гвоздями. Затем нужно немного подождать для того, чтобы произошла усушка досок. В результате этого между досками пола образуются зазоры. Нужно перестелить полы. Для этого достаньте тонкие гвозди и плотно сдвиньте доски. Только теперь их можно прибить большими гвоздями.


    Рис. 28. Утепление пола: 1 — доска пола; 2 — «черновой пол», 3 — рубероид; 4 — утеплитель; 5 — балки; 6 — рейки.

    Вентиляция подполья

    При устройстве цокольного перекрытия бани нужно помнить о том, что русская баня характеризуется повышенной влажностью воздуха и большим перепадом температур. При отсутствии вентиляции бани произойдет конденсация паров снаружи и начнется загнивание деревянных конструкций цокольного перекрытия. Для вентиляции подполья сделайте в цоколе продухи. Теплый и сухой воздух, который пройдет через них, просушит древесину.

    Для зимнего времени нужно предусмотреть вытяжки в полу — решетки и щелевые плинтусы, через которые будет вентилироваться подполье. Обычно подполье засыпают песком или керамзитом.

    Чердачное перекрытие

    Существуют покрытия бани двух видов: чердачное и бесчердачное. У каждого вида покрытия есть свои преимущества. Выбирая его, учитывайте, будете ли вы пользоваться баней весь год или она вам нужна лишь на дачный сезон.

    Чердачное покрытие более долговечное, обеспечивает лучшую теплоизоляцию. Оно больше подходит для сельской бани. Если вы строите баню на даче, то можете обойтись более экономичным бесчердачным покрытием, при котором крыша и потолок совмещены. К плюсам этого покрытия относится то, что крышу такой бани можно использовать в качестве солярия, для установки бочки для летнего душа.

    Самая рациональная конструкция чердачного перекрытия — деревянные балки, на которые настилают доски пола чердака. Лучше всего делать балки в виде брусьев и толстых досок из дерева хвойной породы. Если расстояние между опорами меньше 3 м, приготовьте брусья и доски толщиной не менее 5 и шириной не менее 120 см. Их нужно установить на ребро. Снизу балки зашейте досками, образующими потолок.


    Устанавливая чердачное покрытие, возведите сначала крышу, а затем потолок. В противном случае потолок не будет защищен от осадков.


    Во избежание конденсации пара нужно утеплить чердачное перекрытие бани. Для этого между балками перекрытия уложите утеплитель по слою пергамина. Подшивной потолок лучше сделать из ДВП плит или отделочной доски (рис. 29).

    При устройстве чердачного перекрытия по балкам поверх утеплителя настелите ходовые доски. Вместо минераловатных плит для утепления чердачного перекрытия можно использовать опилки или керамзит.


    Рис. 29. Чердачное перекрытие: 1 — балки; 2 — подшивка потолка; 3 — настил из необрезных досок; 4 — пергамин; 5 — утеплитель (минераловатные плиты); 6 — ходовая доска.


    Для опоры балок и обхода дымовой трубы бани используют ригели (рис. 30).


    Рис. 30. Установка ригелей: 1 — балка перекрытия; 2 — ригель; 3 — металлический хомут.

    Потолок бани

    Потолок бани должен быть теплым. Обшейте его материалом, обладающим высокой термостойкостью, низкой теплопроводностью и хорошими звукопоглощающими свойствами. Для этой цели используйте доски из дерева с низким содержанием смол.

    Деревянный потолок бывает трех видов:

    — подшивной;

    — настильный;

    — панельный.

    Подшивной потолок

    Подшивной потолок имеет вид обшивки досками. Уложенные на стены балки или мауэрлат служат решеткой, на которую нужно набивать доски обшивки. Между досками и чердачной обшивкой должен лежать двойной слой пароизоляции (пергамина или рубероида), на котором настелен слой утеплителя. В этом случае пар бани не будет конденсироваться на потолке (рис. 31).


    Рис. 31. Подшивной потолок: 1 — деревянная балка; 2 — доска; 3 — рубероид или пергамин; 4 — утеплитель.

    Настильный потолок

    Настильный потолок выполняют по балкам или без них. В последнем случае доски настила (накат) укладывайте непосредственно на верхнюю обвязку стен. Накат также покройте пароизоляционным материалом и на него уложите утеплитель. В качестве пароизоляционного материала используйте фольгу, толь, пергамин, рубероид. Если этих материалов нет, обмажьте накат глиной или глинопесчаным раствором. В качестве утеплителя можно использовать засыпку из разных сухих материалов с малым объемным весом. Толщина слоя засыпки зависит от минимальной температуры воздуха при топке бани. Около печной трубы засыпка должна быть несгораемой.

    Засыпку сверху закройте горбылем, прибитым к балкам гвоздями. Еще лучше закрыть засыпку огнестойкими плитами, изготовленными из опилок (1 часть), цемента (0,3 части), глины (4 части) или известкового теста (1,5 части) и воды (2–2,5 части). Густую массу из этих материалов уложите в формы, смоченные водой и посыпанные песком. Уплотните массу, при возможности армируйте сухими сучьями и прутьями толщиной не более 1 см (без коры). Сверху посыпьте песком, накройте деревянным щитом и переверните. Снимите форму, а готовую плиту на щите отнесите под навес для сушки. Толщина такой плиты — 2 см, ширина — не менее 30 см, длина должна быть равной расстоянию между балками. Плиты можно заменить кусками шифера.

    Панельный потолок

    Панельный потолок не отличается по конструкции от панельных стен. Обычно для изготовления рам, используют доски шириной 140–190 мм и толщиной 25–30 мм, что позволяет сделать рамы 3-метровой длинны. При выборе ширины рамы учитывайте ее вес и удобство при монтировании. Чтобы избежать слишком тяжелого веса панелей, обшивайте их только со стороны потолка. Можно сразу не укладывать утеплитель, а сделать это после монтажа, закрыв его шифером.

    Для того, чтобы вода не собиралась на верхней обшивке панелей, при обшивке сделайте уклон в 5°.

    Перед укладкой панелей на обвязку стен уложите слой утеплителя (пакли). Наружные швы зашейте досками (рис.32).


    Рис. 32. Панельный потолок. 1 — деревянная балка; 2 — шит; 3 — пластик; 4 — утеплитель; 5 — рубероид или пергамин; 6 — опорный брусок.

    Крыша бани

    Кровля бани состоит из чердачного перекрытия и крыши. Обычно крышу бани делают двускатной стропильной, реже — односкатной балочно-каркасной. Конструкцию крыши составляют несущие элементы и сама кровля. К несущим элементам относятся стропила и прогоны. К элементам кровли — обрешетка или настил с водоизолирующим слоем.

    При выборе формы крыши бани учитывайте местные погодные условия и имеющийся кровельный материал. В районах, где часты дожди и снег, нужно делать уклон крыши крутым, а где дуют порывистые ветры — пологим. Если вы накрываете крышу бани жестью, то угол ската крыши делайте примерно 15–27°. Если ваша крыша будет накрыта шифером, то угол ската должен быть равен 27°, при использовании рулонного материала и дерна — 3–15°.

    Двускатная крыша

    Рекомендуется накрывать баню двускатной стропильной крышей. Этот вид крыши состоит из стропил, накладок, стоек, обрешетки и покрытия, выполненных из досок, брусьев, круглого леса. Наклонные плоскости крыши образуют вверху конек (рис. 33) и два фронтона. Чем меньше крыша имеет стыков и углов, тем лучше и дольше она служит (рис. 34, 35).


    Рис. 33. Конек кровли: 1 — оцинкованная кровельная сталь; 2 — асбестоцементный лист; 3 — обрешетка; 4 — стропила.


    Конструкцию чердачного перекрытия и стропила можно установить на место, собрав их внизу.


    Рис. 34. Детали свеса кровли: 1 — оцинкованная кровельная сталь; 2 — подшивка отделочной доской; 3 — лобовая доска.


    Рис. 35. Зашита дымовой трубы: 1 — оцинкованная кровельная сталь; 2 — асбестоцементный лист; 3 — обрешетка; 4 — стропила; 5 — заделка цементным раствором в смеси с волокнистыми материалами.

    Установка стропил

    Стропила крыши имеют большое значение. Они выдерживают нагрузку от ветра, снега и кровли. Главное условие при устройстве стропил — обеспечение их прочности. Желательно делать стропила наклонными. Чем круче крыша, тем меньше на ней удерживается снега.

    Стропила бывают трех видов:

    — бревенчатые диаметром не менее 12 см;

    — брусчатые сечением не менее 60 кв. см;

    — из досок толщиной не менее 4 и шириной не менее 15 см.

    При установке стропил на бревенчатой бане сделайте вырезы в верхнем венце. Для прикрепления к балке наклонных стропил используйте подстропильные брусья. Прикрепляйте стропила к балке железными скобами или деревянными накладками. При этом проверяйте горизонтальность балок. Выравнивая балки по горизонтали, подложите под них дощечки.

    Деревянный брус-мауэрлат подкладывайте под концы стропильных ног только в деревянных панельных и кирпичных банях. Он способствует равномерному распределению нагрузки вдоль всей стены.

    Устанавливайте стропила в виде двух стропильных ног через 60–120 см, скрепив их со стеной «скрутками» из проволоки или скобами. Между собой стропила соединяйте ветровыми связями. Коньковое соединение стропил должно быть в полдерева. Сверху конька укрепите коньковый брус.

    Устройство деревянного карниза

    Часто большие трудности возникают при устройстве карниза. От правильности его выполнения зависит долговечность стен.

    Концы стропил должны выступать наружу на 40–50 см и образовывать деревянный карниз.

    Деревянные карнизы бывают четырех видов (рис. 36):

    — карнизы на стропилах, выпущенных за пределы стен;

    — карнизы на шпалах с подшивкой снизу;

    — карнизы по нарожникам;

    — карнизы с палицей.


    Рис. 36. Устройство деревянных карнизов: 1 — с палицей; 2 — на шпалах; 3 — по стропилам; 4 — по нарожникам.


    Основное требование к карнизу — максимальная легкость. Стремясь сделать бревенчатую баню похожей на старорусскую на «кобылках», многие плотники не зашивают карниз досками. Фигурно вырезанные стропила могут украсить баню (рис.37).


    Рис. 37. Карниз на «кобылках»

    Настил обрешетки

    Способ настила обрешетки зависит от вида кровельного материала. Например, если кровля вашей бани будет из рулонного материала или дерна, то обрешетка должна иметь вид сплошного деревянного настила, который набивают на обрешетку под углом 45°. Настил лучше делать из обрезных досок, но можно использовать и необрезные доски. В любом случае деревянная обрешетка должна быть из ровных, чистых и сухих досок. Это обеспечивает долговечность кровли.

    Шиферная крыша требует выполнения обрешетки из следующих материалов:

    — брусьев сечением не менее 50×50 мм;

    — досок толщиной 30 мм;

    — досок или горбыля толщиной менее 30 мм.

    Во избежание задувания снега на чердак поверх обрешетки уложите рубероид.

    Начинайте настил обрешетки с прибивания к стропилам коньковой доски обычными гвоздями. Отступите 10 см и прибейте первый ряд обрешетки. Через 10 см прибивайте следующие ряды.

    Кровля бани

    Для покрытия крыши бани можно использовать следующие материалы:

    — рулонные материалы (толь и рубероид);

    — кровельную сталь (жесть);

    — асбестоцементные листы (шифер);

    — дерн.

    Для изготовления коньков, желобков, примыкания кровель к дымовым трубам и оконным проемам приготовьте оцинкованную кровельную сталь.

    Кровля из рулонных материалов

    Раньше самым распространенным кровельным рулонным материалом являлся рубероид. Кровли, сделанные из рубероида, служили до 30 лет. Они экономичные и не требуют больших трудовых затрат. Для дополнительной гидроизоляции некоторые промазывают рубероид сверху раствором битума в керосине. После этого посыпают песком. Через 2–3 года эту процедуру повторяют.

    Выполняйте наклейку рубероида в тихую погоду. Рубероид крепите к настилу обрешетки методом наклеивания на мастику, приготовленную из битумов марок БН-1У и БН-У. Для этого расплавьте битум и влейте в него керосин (6 л керосина на 4 л жидкого битума). Покройте сухой настил грунтовкой из растворенного в керосине битума. Наклейте мастикой пергамин вдоль свеса, параллельно коньку. Намазывайте мастику травяной щеткой или гребком из согнутого листа резины, зажатой в досках. Листы пергамина должны свисать по обе стороны крыши на 15 см. Эти концы впоследствии заведите под ветровые доски. Пергамин нужно подготовить заранее, примерно за сутки до укладки. Чтобы избежать его волнистости, перекатайте его на другую сторону.

    Мастику можно приобрести в готовом виде (мастика МБК-Г-85) или сделать самим (с предельной осторожностью во избежание несчастных случаев).

    Для изготовления мастики расплавьте битум в металлической посуде. Причем нагревать его нужно до тех пор, пока не прекратится вспенивание. В этом случае из битума будет полностью удалена вода. В расплавленный битум постепенно вливайте керосин из расчета 3 л на ведро битума. Затем всыпьте 2 кг мела или 1 кг сухой торфяной крошки, просеянной через мелкое сито. Все это нужно делать при непрерывном помешивании. В заключение подогрейте мастику до 200 °C, так как только горячая мастика может сплавиться с битумом, находящимся в картоне рубероида или пергамине.

    Следующий этап — наклеивание рубероида. Предварительно за сутки (так же, как и пергамин) раскатайте рубероид и металлической щеткой очистите нижнюю сторону, посыпанную тальком, а также кромку шириной 10 см с наружной стороны для приклейки накрывающего соседнего листа. Нарежьте его кусками нужной длины, равной длине ската плюс 25 см на загибы через конек и карнизную доску. При наклеивании рубероида следите за тем, чтобы не оставалось воздушных мешков, прокалывайте их шилом.

    Разгладьте приклеенный рубероид от середины к краям руками или небольшим мешочком с песком. Иногда кромка рубероида может отойти от нужного направления. Чтобы это исправить, отрежьте лист по рейке сапожным ножом и сдвиньте в нужном направлении (с обязательным перекрытием верхним листом линии отреза на 10 см). Если лист не отрезать и сдвигать, то на нем образуются морщины. За конек лист должен выступать на 15 см. Прибейте сверху на коньке полоску кровельной стали.

    Прибейте рубероид к карнизным доскам полосками кровельной жести. Фронтоны заделайте.

    Следующие полосы рубероида накладывайте внахлест с перекрытием в 5–6 см.

    Накрыв скаты крыши рубероидом, начните укладку и приклеивание второго слоя рубероида. Причем это делают, начиная с другого конца крыши. В целях повышенной гидроизоляции смещайте швы листов рубероида по отношению к нижележащим на половину их ширины.

    Кровля из асбошифера

    Кровля из асбошифера — самый удобный кровельный материал. Он относительно дешевый, долговечный и простой в устройстве.

    Асбошифер на дощатую обрешетку укладывают следующим образом.

    Сначала укладывают нижний ряд под карнизом, затем следующие — до самого конька. Для того чтобы удержать довольно тяжелый лист шифера и выровнять его, прибейте к нижнему брусу обрешетки по две скобы из оцинкованного стального листа. Загнутые концы скоб смогут придержать лист шифера.

    При необходимости листы шифера предварительно распиливают. Для того, чтобы лист шифера легче распилился, смочите его с двух сторон по линии разреза.

    Для крепления листов приобретите специальные шиферные гвозди длиной 100 мм с антикоррозионной шляпкой. Прибивайте гвозди в местах соединения листов и обязательно на гребне, подкладывая под головки уплотнительные шайбы из резины.

    Во избежание повреждения шифера подготовьте отверстия под гвозди при помощи дрели, смочив место сверления водой. Обычно делают отверстия гвоздем.

    Но в этом случае положите под шифер деревянный шаблон полукруглой формы. Он должен плотно прилегать к шиферу.

    Вышележащие ряды шифера должны перекрывать нижележащие на 10–14 см. И чем круче скат, тем меньше делают перекрытие. В горизонтальных рядах листы укладывают внахлестку на целую волну.

    Не допускайте неплотностей в местах нахлестки шифера. Их нужно замазать битумными мастиками или замазкой из цемента и мелкого песка (1:2). Для того, чтобы замазка не трескалась, добавьте в нее 0,5 части шлаковаты.

    Коньки кровли перекройте оцинкованной сталью (жестью). Из нее же сделайте воротник в месте примыкания кровли к дымовой трубе (рис. 38).


    Рис. 38. Кровля из асбестоцементных листов (шифера): 1 — шифер; 2 — обрешетка; 3 — рубероид; 4 — пергамин; 5 — конек; 6 — сплошной настил из обрезной доски; 7 — отливы из оцинкованной стали.


    Передвигайтесь по шиферной крыше осторожно. Постелите для этого специальную доску с планками для упора.

    Правильный уход за шиферной крышей обеспечит ее долговечность. Сметайте снег с крыши только метлой, проветривайте чердачное помещение, своевременно заделывайте мелкие трещины и отколы цементным раствором из 1 части цемента и 2 частей песка.

    Кровля из дерна

    В старину крышу бани покрывали дерном. В наши дни в Финляндии покрывают дерном бревенчатые сауны, отдельно стоящие на берегу пруда или в лесу. Финны стремятся максимально приблизиться к природе. Вы тоже можете покрыть крышу своей баньки дерном.

    Уклон дернового покрытия должен быть не менее 10°. Настил обрешетки делайте сплошным и покройте несколькими слоями гидроизоляции.

    Уложите дерн в два слоя. Причем первый слой дерна укладывается корнями вверх, а второй — корнями вниз.

    Ухаживайте за дерновой крышей, как за газоном, так как он может сильно зарасти.

    Устройство подвесных желобов

    Подвесные желоба нужны для защиты стен бани от дождевой воды и отвода ее с крыши. Они бывают прямоугольного, квадратного и полукруглого сечения.

    Подвешивайте эти желоба на проволочных хомутах на крючки. Предварительно забейте хомуты в карнизную доску и просверлите отверстия для крючков.

    Делайте уклон желобов не более 1,5 см на 1 м длины. Не рекомендуется подвешивать желоба на длинных хомутах. В противном случае вода при сильных ливнях будет перехлестывать через желоб. К концу желоба должна подходить водосточная труба. Если у вас нет такой трубы, то можно использовать толстый шпагат с грузом на конце или круглую деревянную палку.

    Полы бани

    Современные бани делают с полами двух видов:

    — полы из деревянного настила. Они хорошо сохраняют тепло бани и приятны для ног. Их настилают в парной, предбаннике.

    — бетонные полы. Удобны в моечной, парной. Но их нужно обязательно покрыть съемными деревянными решетками. За таким полом легко ухаживать. Съемные решетки удобно мыть и сушить.

    В старину в русских банях делали земляные полы, срезав растительный слой толщиной 15 см и утрамбовав грунт.

    Дощатые полы

    Дощатый пол укладывают после выполнения кровли, остекления окон, установки дверных блоков, производства штукатурных и специальных работ.

    Дощатые полы бани чаще всего делают из древесины хвойных и лиственных пород: сосны, ели, лиственницы, пихты, кедра, березы и др., кроме осины, липы, тополя и дуба. Это строганые шпунтованные доски I и ІІ сорта.

    Влажность досок при укладке должна быть не более 12 %. Толщина досок для полов в жилых зданиях — 29 мм. Доски с нижней стороны должны иметь выборную впадину не более 2 мм глубиной. Покройте все доски антисептиком с нижней стороны и по краям.

    Толщина лаг для пола — 40–80 мм, ширина — 80–100 мм, а толщина подкладок — 15–40 мм. Для лаг приготовьте доски II и III сорта влажностью не более 18 %. Лаги и прокладки пропитайте антисептиком со всех сторон.

    Весь материал для пола храните сложенным в штабеля, в закрытом помещении или под навесом. Прибивайте доски к лагам гвоздями, длина которых должна составлять 2–2,5 толщины доски.

    На 100 м2 пола при толщине досок 29 мм требуются:

    — доски половые — 2,73 м3;

    — гвозди — 12,5 кг;

    — плинтусы — 42 погонных метра.

    В качестве утеплителя используются различные материалы:

    — маты минераловатные, прошитые в бумаге;

    — маты минераловатные на синтетической основе;

    — маты стекловолокнистые;

    — шлак, песок, аглопорит, керамзит.

    Основанием дощатого пола могут быть грунт, уплотненный щебнем, подстилающий слой из бетона. Если вы устраиваете полы из двух слоев дощатых покрытий, то основанием пола будет сплошной дощатый настил нижнего слоя. Полы в бане настилают после устройства дренажной системы для удаления использованной воды и возведения фундамента для печки-каменки.

    Устройство дренажной системы

    Способ устройства дренажной системы будет зависеть от вида грунта, на котором стоит баня.

    Песчаный грунт легко поглощает воду. Поэтому вам будет достаточно ямы размером 60×60 см с глубиной 50 см, вырытой в моечной. Эту яму нужно засыпать щебнем, гравием, битым кирпичом. Грунт от ямы и до стен моечной уплотните с уклоном к яме с последующей посыпкой слоем гравия и щебня. Грунт возле фундамента обычно покрывается глиной и сильно утрамбовывается.

    Известно, что глинистый грунт плохо поглощает воду. Поэтому для устройства дренажной системы не делают яму для использованной воды, а отводят ее из-под бани через такую дренажную систему: из устроенного приямка под моечной внутри бани вода должна вытекать по водосливной трубе в яму снаружи бани.

    В первую очередь нужно сделать приямок. Для этого выройте небольшую яму под моечной (30 см по всем сторонам), забетонируйте ее стены или выложите их каким-нибудь другим водонепроницаемым материалом. На расстоянии 10–12 см от дна сделайте в бетонной стене отверстие для водосливной трубы, установив на это отверстие гидрозатвор, закрывающий вход в трубу. Затем укрепите водосливную трубу.

    Укладка лаг

    Выполните под полы на грунте столбики из красного кирпича марки 75 на растворе марки не ниже 50. На эти столбики уложите деревянные прокладки по двум слоям толя или рубероида. На них — лаги. Стыкуйте лаги со столбиками впритык. При толщине лаг от 40 до 60 мм расстояние между осями столбиков должно составлять 80–90 см. Воздушное пространство под покрытием полов должно быть изолировано от воздушного пространства помещения.

    Лаги для пола укладывайте так, чтобы доски пола в парной и моечной лежали вдоль направления света из окна, а в предбаннике и тамбуре — вдоль направления движения по ним.

    Отметьте уровень «чистового пола» и по этим отметкам уложите маячные лаги, опустив их от отметки пола на толщину половой доски. Первую маячную лагу заложите на расстоянии 3 см от продольной стены комнаты, следующие лаги — через каждые 90 см. Это расстояние может измениться в зависимости от толщины лаг. Последнюю маячную лагу уложите на расстоянии 3 см от противоположной стены.

    Водяным уровнем и с помощью отфугованной рейки обязательно проверьте горизонтальность маячных лаг. При выравнивании лаг нельзя подбивать клинья. Для этого необходимо пользоваться подкладками из слоев звукоизоляционных прокладок. В заключение расшейте маячные лаги рейками. В этом случае они не сдвинутся с места.

    Настил дощатого покрытия

    Прежде всего, уберите весь строительный мусор из подпольного пространства. Затем разложите по лагам опиленные по размерам доски. Их гребни должны быть направлены в одну сторону. Первая доска должна лежать пазом к стене на расстоянии 1 см от нее. Выровняйте ее и прибейте гвоздями к лагам. Следующие доски плотно придвигайте к ранее уложенной, насаживая паз на гребень ударом молотка через прокладку. В качестве прокладки используйте кусок доски с пазом. Затем прижмите доску и прибейте гвоздем к каждой лаге.

    Важно правильно вбивать гвозди. Забивайте их в основание гребня под углом 45° в сторону сплачивания, утапливая добойником. Для последней доски приготовьте клин, который забейте между доской и стеной, защищая поверхность стены от повреждения фанерной прокладкой. Таким образом доска будет плотно прижата. При необходимости уложите дополнительную лагу (в местах, где концы досок свешиваются на лаги более чем на 10 см).

    Опытные плотники при настиле пола применяют зажимы различных конструкций (при этом первую доску укладывают гребнем к стене) для плотного прилегания досок. Забив все гвозди, зажимы снимают и устанавливают зажим на другую доску.

    Деревянные полы бывают протекающие и непротекающие.

    Иногда в банях полы делают протекающими, чтобы сохранить доски пола. Протекающий пол удобен тем, что неприбитые доски можно вынести для просушки (рис. 39).


    Рис. 39. Деревянный протекающий пол: 1 — бревенчатая стена; 2 — плинтус; 3 — гидроизоляция; 4 — фундамент; 5 — шебеночно-гравийная подсыпка; 6 — яма; 7 — протекающий пол; 8 — асбестоцементные трубы.


    Доски пола свободно уложите на лаги, применяя гидроизоляцию. При этом их не прибивайте, а между досками и лагами настелите резиновые прокладки. Сами доски сделайте с выпуклой серединой для того, чтобы с них легче сливалась вода. Доски протекающего пола укладывайте не плотно, а с зазором 5 мм для обеспечения свободного слива воды при набухании досок.

    При устройстве непротекающих полов уложите доски пола так, чтобы один их конец был ниже другого. Кроме того, обязательно сделайте лоток для сбора воды и направления ее в приямок. Этот лоток прикрепите под нижним концом досок. Защитить пол моечной от влаги можно, покрыв его линолеумом так, чтобы он не пропускал воду (рис.40).


    Рис. 40. Деревянный непротекаюший пол: 1 — пароизоляция стены; 2 — внутренняя обшивка стены из арболита или кирпича; 3 — гидроизоляция; 4 — лаги; 5 — фундамент; 6 — лоток; 7 — лаги для желоба; 8 — непротекаюший пол.

    Вентиляция пола

    Пол в бане должен хорошо просыхать, а пространство под полом — вентилироваться. Обычно для обеспечения вентиляции пола бани располагают поддувало печи-каменки ниже пола.

    Можно сделать сообщающимися подпольное пространство и поддувало печи через съемный короб из жести.

    В одном из углов моечной вы можете установить вентиляционный стояк из асбестоцементной трубы. Этот стояк нужно вывести выше крыши. Как и на дымоходной трубе, на вентиляционном стояке установите дефлектор. Многие делают большую ошибку, выводя вентиляционный стояк на чердак бани. Зимой из-за высокой влажности на чердаке образуется несвежий воздух, которым будет наполняться и вся баня.

    Острожка пола и установление плинтусов

    Острожка полов выполняется методом острогивания неровностей на 1,5–2 мм при помощи электрорубанка. Предварительно нужно очистить пол от мусора. Затем не забудьте проверить, все ли шляпки гвоздей утоплены. Между плинтусом и стеной установите прокладки из мягкой ДВП или другого материала и полосок рулонного водоизолирующего материала. Верхний конец полоски необходимо завести под обшивку, а нижний конец загнуть внутрь помещения. Затем нужно смочить пол водой при помощи распылителя (метелки, кисти). В заключение установите плинтусы между стеной и полом. Крепите плинтусы через каждые 70 см на деревянные пробки.

    Пол в бане нельзя покрывать лаком. Главное условие для обеспечения сохранности пола, как и стен, — хорошо просушить после использования бани.

    Выполнение бетонного покрытия

    Предварительно сделайте подсыпку из гравия и песка слоем толщиной до 15 см. Подсыпку необходимо уплотнить, сделав уклон в строну приямка. По этому покрытию уложите один слой бетона толщиной 3 см. Затем — слой утеплителя из минераловатных матов, войлока, пропитанного битумом. После этого уложите еще один слой бетона. Затем выровняйте это покрытие, проложив сверху тонкий слой цементного раствора.

    Следующий этап — укладка на пол керамической плитки и установка на приямок водосточной решетки.

    Вместо плинтуса на бетонном полу зазор между полом и стеной заделывают битумом или приклеивают на битум полоски рулонного водоизолирующего материала (рис. 41).

    Бетонный пол нуждается в покрытии съемными деревянными решетками.


    Рис. 41. Бетонный пол: 1 — внутренняя обшивка каркасной стены; 2 — пароизоляция;3 — гидроизоляция; 4 — фундамент; 5 — шебеночно-гравийная подсыпка; 6 — бетон с теплоизолирующим наполнителем; 7 — цементная стяжка; 8 — покрытие из керамических плиток; 9 — водосливная труба; 10 — деревянная решетка; 11 — водосточная решетка; 12 — гидрозатвор; 13 — приямок.

    Облицовка полов метлахской плиткой

    Полы из метлахской (керамической) плитки устраивают в моечной бани на бетонном основании. При этом толщина основания раствора должна быть равна 20 мм, ширина швов — 2–3 мм, максимальная крупность зерен — 3 мм, расход цемента на 1 м3 раствора — 450 кг.

    Нанесите на основание пола цементно-песчаный раствор и разровняйте его. Выровненную поверхность раствора посыпьте цементом (0,5 кг на 1 м). Уложите плитку на раствор и прижмите, постукивая молотком, к основанию. Спустя 1–2 дня заделайте швы цементным раствором. Для окончательной отделки поверхность пола посыпьте цементом и загладьте нагретой кельмой.

    Если в полу из керамической плитки повреждена или разбита одна плитка, ее можно заменить. Для этого выбейте зубилом поврежденную плитку и удалите весь раствор, уложенный под ней. Затем основание смочите водой, уложите свежий раствор и плитку. После этого затрите швы.

    Земляные полы

    Если вы хотите максимально приблизить свою баню к старорусской, то сделайте в парной земляной пол. Для этого на расстоянии 50 см от фундамента по периметру парной выберите грунт на глубину 45–50 см, утрамбуйте подготовленную площадку и засыпьте ее до начального уровня мелким гравием и песком. Сверху можно настелить доски.

    Двери бани

    Двери бани должны быть одностворчатыми, небольшого размера (с высотой 160–170 см и шириной 65–80 см), легкими, со слоем утеплителя и пароизоляцией. В парной и моечной дверь не должна быть шире 75 см. Обязательно утройте порог в 30 см у входной двери. У двери из парной в моечную порог делать необязательно. Наоборот, между дверью и полом должен быть зазор в 4–5 см. Главное требование — все двери должны открываться наружу.

    Изготавливайте двери бани на шпонках из толстых шпунтованных досок с выбранными четвертями. Это достаточно трудоемко. Обычно такую дверь делают из двух рам. Для этого вам понадобятся 4 вертикальных и 8 горизонтальных брусков толщиной 30 мм и шириной 100–120 мм. Угловые соединения выполняйте внахлест с шипом.

    Наружную раму обшейте с двух сторон ДВП, затем проложите слой утеплителя из войлока, минераловаты, пенопласта. Затем наложите внутреннюю раму меньших размеров на наружную раму. Скрепите их винтами, заполнив внутреннее пространство тепло- и пароизоляцией. Затем обшейте дверь тонкими досками, пропитав олифой их внутреннюю поверхность и нижний торец.

    Иногда делают двери бани с наружной теплоизоляционной обивкой, как в жилых домах. В этом случае обязательно утеплите края обивки валиком из эластичных герметизирующих профилей.

    Двери для моечной и предбанника можно сделать из одной рамы. К ней прикрепите с двух сторон стеклопластиковые листы, заполнив зазор слоем утеплителя.

    В заключение обшейте дверь рейками, пропитав олифой их внутреннюю поверхность и нижний торец. Это послужит гидроизоляцией. Можно верхний слой двери сделать из водостойкой фанеры или ДВП.

    Изготавливайте все двери на 5 мм уже расстояния между четвертями коробки, чтобы их не заклинило при набухании.

    Освещение моечной и парильни можно обеспечить через окна, сделанные в дверях.

    Большое значение для пользования дверями бани (особенно парной) имеют запоры: во-первых, все запоры должны находиться внутри комнаты; во-вторых, нельзя устанавливать щеколды и английские замки — в противном случае парильщик может нечаянно запереться в бане; в-третьих, нужно делать по два запора — сверху (деревянный засов или задвижка) и снизу. Это сделает дверь более герметичной; в-четвертых, во избежание ожогов все засовы, ручки и крючки в бане должны быть деревянными.

    Окна бани

    Баня не должна быть сильно освещена. Уютную атмосферу создает полумрак. Поэтому окно в бане следует делать небольшим (5 % площади пола).

    Пропорциональное отношение длины к ширине окна составляет: 30×40, 40×60, 60×80 см. Сделайте окно высоко на стене, чтобы можно было смотреть на живописный пейзаж, лежа или сидя на полке. На такое окно занавесок не вешают.

    Окна делайте из двух рам. Для них заготовьте рейки сечением 30×50 мм. Угловое соединение выполняйте внахлест с шипом. Такой тип соединения прост, его можно выполнить при помощи ручной пилы. После подгонки угловые соединения рамы склейте и закрепите шипами. Пазы для стекла образуйте накладками из реек сечением 10×30 мм, которые прикрепите, отступив на 10 см с внутренней стороны.

    Раскраивайте стекло так, чтобы получилось меньше отходов, а остатки можно было использовать для остекления переплетов веранды. Размеры стекла должны быть на 3–5 мм меньше, чем расстояние между бортами фальцев переплетов, а фальцы закрыты стеклом не менее чем на 3 /4 своей ширины. В этом случае стекло не расколется при разбухании древесины в процессе эксплуатации.

    Угловые соединения накладок выполняйте впритык. Накладки крепите к основной раме с помощью клея и шипов. Замажьте все щели между стеклом и рамой известково-цементным раствором или другим изоляционным материалом.

    Утеплите сдвоенные (свинчивающиеся) окна пастой из мела и клея для обоев (2:1) и небольшого количества воды. Заполните этой пастой зазор между створками. В этом случае окно не будет потеть.

    Двойные рамы обеспечат двойное остекление окна бани (рис. 42).


    Рис. 42. Окно бани: 1 — раскладка; 2 — отлив; 3 — коробка; 4 — каркас; 5 — обшивка бани; 6 — оконный блок; 7 — наличник; 8 — уплотняющий шнур; 9 — замазка; 10 — стекло.

    Веранда и крыльцо бани

    Возле бани можно устроить место отдыха или солярий, пристроив к ней террасу или веранду, обвитую виноградом или другими вьющимися растениями. Они закроют баню от дождя, ветра и от посторонних глаз, украсят ее (особенно летом), создадут интимную обстановку и хорошее настроение. При пристройке веранды к уже существующей бане надо всегда помнить о том, что вся ее прелесть в близости к природе — к саду или цветнику.

    Веранда должна вмещать лежанку, стол и стулья. Вход на веранду с улицы лучше делать ближе к двери в баню, чтобы больше оставалось места для мебели. На большой веранде дверь может быть посередине стены, тогда по обе ее стороны от входа останутся места для мебели. На веранде размером 3×4 м дверь лучше располагать в торце. В плане бани веранда может быть объединена с предбанником или тамбуром.

    Веранда — как бы промежуточное помещение между баней и садом, и ее остекление желательно делать большим по площади, с простыми тонкими переплетами. Не стремитесь делать окна веранды с частыми и очень сложными переплетами. Это нецелесообразно по многим причинам:

    — сложно в изготовлении;

    — требует большого расхода материалов;

    — густая «сетка» стекол препятствует солнечному свету и обзору сада.

    Возведение веранды

    Сделайте под веранду легкий столбчатый фундамент. На него положите нижнюю обвязку из бруса или кантованного тонкого бревна размером примерно 12×12 см. Затем установите угловые стойки, на которые укрепите верхнюю обвязку, стропила и кровлю.

    Подоконная доска должна находиться ниже, чем подоконники в комнатах (на высоте 45–60 см от пола). Стену под окном зашейте тесом «в шпунт» или «в елку». Между подоконной доской и верхней обвязкой установите рамы окон веранды.

    Количество элементов рам зависит от величины веранды. В любом случае между двумя открывающимися створками целесообразно поставить одну глухую, неоткрывающуюся раму. Другие створки навесьте на ее вертикальные стойки. Это позволит сделать вертикальные стойки всех рам одинаковыми и не очень большой толщины.

    Рамы можно делать высотой 170–180 см при ширине 50–55 см. Горизонтальный брус толщиной 2,5 см в зависимости от высоты рамы установите через 40–45 см.

    Теперь нужно подумать о крыше веранды. Для того чтобы она подошла под свес кровли бани, пол веранды нужно опустить на 30 см (на две ступеньки) ниже уровня пола в бане.

    Для устройства солярия под потолком веранды установите лампы инфракрасного и ультрафиолетового излучения, позволяющие облучаться без освещения (в темноте) или при слабом освещении. Желательно сделать рядом с баней бассейн или большую емкость с холодной водой для контрастных водных процедур.

    Возведение крыльца

    Крыльцо также может украсить баню и придать ей особенность. Оно не только защищает от непогоды, но и является дополнительной удобной площадью перед дверью.

    Основные требования к крыльцу — эстетика, простота формы, удобство. На нем можно поставить скамейку для отдыха, приделать к нему решетку для вьющейся зелени, установить столбы, подпирающие навес, сделать ступени и перила. Все это еще более украсит баню.

    Большинство из того, о чем говорилось выше, давно нашло отражение в разных типовых проектах бань. Если же такие проекты по каким-либо причинам не представляется возможным использовать, надо внимательно изучить их, стараясь взять все наиболее рациональное и самому построить красивую и удобную баню.

    Вентиляция бани

    Вентиляция бани предназначена для обеспечения нужного теплового режима, просушивания помещения и притока свежего воздуха. Для вентиляции бани используется печь-каменка через забор воздуха для топки. Помещения моечной, парной и предбанника могут вентилироваться через двери, форточки, отдушину и специальные вентиляционные каналы.

    С этой целью обязательно устройте над верхним полком отдушину в виде прямоугольного или круглого отверстия в стене диаметром 20 см. Заглушка отверстия в виде обитой мягким материалом заслонки с деревянной ручкой должна быть скользящей. Это обеспечит регулирование вентиляции.

    Для дополнительной вентиляции и притока в баню свежего воздуха устройте вентиляционное отверстие возле печи-каменки на высоте полуметра от пола. Отвод воздуха в это отверстие возможен лишь при наличии тяги, создаваемой специальной вентиляционной трубой или дымовой трубой печки-каменки. Можно устроить дополнительное отверстие в нижней части двери. Эти отверстия тоже закройте скользящей сплошной задвижкой или в виде перфорированной пластины.

    Проветривайте чердак через оконце, которое зимой перед топкой бани закрывайте.

    В том случае, когда топочное отверстие печи-каменки расположено в предбаннике, нужно обеспечить отвод сырого и холодного воздуха из-под пола. Пол в этом случае будет быстро нагреваться и быстро сохнуть. Если же топочное отверстие расположено в парной, то поддувало обязательно должно находиться ниже уровня пола.

    Печь-каменка

    Каменка — так ласково называли на Руси банную печь.

    Печь-каменка — «сердце» бани. Какова печь — такова и баня.

    Сходить в баню и у наших предков означало прежде всего хорошенько пропотеть, избавившись тем самым от хвори и недугов, очистить организм, зарядиться бодростью и здоровьем. Но какой жар без хорошей печки?

    Ведь именно от печки зависит, станет поход в баню волшебным исцеляющим средством или заурядным смыванием грязи. Если печь тепла не держит да пар сыроват — никакого удовольствия от бани. Поэтому строительству печи раньше уделялось особое внимание. Да и сама печь представляла собой сложное сооружение, состоящее из фундамента, топки, камеры с камнями для получения жара, дымоходов, поддувал.

    В современных банях применяют электрические нагреватели-калориферы или трубы парового отопления.

    Но они не могут конкурировать с хорошей печью-каменкой по многим причинам:

    — не могут обеспечить регулирование влажности воздуха;

    — не могут обеспечить накопление и быстрое выделение тепла;

    — быстро остывают.

    Печь-каменка обычно устанавливается в углу у двери. На противоположной стороне размещают окно, под ним — скамью для мытья. Печь-каменка может топиться дровами, углем, жидким топливом, газом. Сейчас распространены электрические печи-каменки.

    При постройке бани учтите, что тяга в печи будет зависеть от высоты трубы.

    Основные требования к устройству печи-каменки следующие.

    Размер печи должен зависеть от вида ее отопления, требуемой мощности и площади парной.

    Малогабаритные печи устанавливают под полком или в нише стены в парильнях с площадью до 2 м2.

    Печь-каменку располагают так, чтобы одновременно нагревались и парная, и моечная, и предбанник. Она должна быть подальше от легко возгораемых частей помещения. Печь-каменка должна занимать не более 0,15 м2 полезной площади.

    Во избежание ожогов печь-каменку необходимо оградить теплоизолирующим материалом (деревом).

    Тепло от печи должно передаваться на человека со всех сторон, главным образом, путем конвекции нагретого воздуха. Поэтому температура стенок печи должна быть как можно ниже, а отражательная способность стен бани — как можно больше.

    Чем толще стенки печи, тем медленнее она нагревается и дольше сохраняет тепло.

    Печи-каменки длительного режима действия

    Печи-каменки в русской бане могут работать в длительном или периодическом режиме.

    Печи длительного режима, как правило, имеют тонкие стенки и небольшой объем камней. Отапливаются эти печи газообразным, жидким или твердым топливом. При этих видах топлива температура нагрева регулируется изменением количества поступающего в топку топлива.

    Печи-каменки на твердом топливе

    В семейных банях используют печи-каменки, работающие в основном на твердом топливе. В качестве твердого топлива применяются уголь и дрова. Лучше всего топить баню березовыми дровами, которые дают много жара, не искрятся и не «стреляют». Если вы заготовили для топки печи-каменки дрова хвойных пород, то к концу топки добавьте в печь несколько осиновых поленьев или картофельные очистки. Таким образом вы избавитесь от копоти и дыма.

    Печь-каменка, размером 400×505×750 мм с двойными боковыми стенками создает максимальную температуру 140 °C в парной объемом 10 м3(рис. 43). Она устроена так, что через щели в корпусе в верхнюю зону камеры сгорания поступает вторичный воздух. Дым от сгорания топлива проходит по каналам вокруг бункера для камней и выводится из печи в дымоход через переднее отверстие. Зазоры между боковыми стенками выполняют две функции: служат каналами для циркуляции и нагрева воздуха и по ним циркулирует нагреваемая в баке вода.


    Рис. 43. Печь-каменка на твердом топливе: 1 — корпус печи; 2 — глазок; 3 — зольник; 4 — колосниковая решетка; 6, 7, 9 — дымоходы; 5 — топливник; 8 — камни; 10 — дымоход; 11 — щели для нагретого воздуха; 12 — водогрейная труба.

    Печь-каменка конструкции Ф. И. Мартынкевича

    Эта печь соответствует конструкции и размерам бани, схематически изображенной на рисунке 7 (см. «Семейная баня на 6–8 человек»).

    Печь в такой бане имеет много достоинств:

    — имеет невысокую себестоимость;

    — занимает мало места;

    — быстро нагревается;

    — позволяет пользоваться сухим паром длительное время;

    — экономична в отношении расхода топлива;

    — ею можно нагревать воду в количестве, достаточном для всей семьи;

    — отапливает не только парильню, но и моечную;

    — безопасна, исключает возможность возникновения пожара, отравления угарным газом;

    — высушивает всю баню;

    — не требует частого ухода.


    Рис. 44. Печь-каменка со встроенным баком для воды конструкции Ф. И. Мартынкевича.

    1 — кирпичный фундамент; 2 —дверка поддувала; 3 —дверка топливника; 4 — емкость для воды; 5 — металлическая сетка; 6 — зазор между каменной засыпкой и надевающейся водой; 7 — отверстие для залива воды; 8 — дымоход; 9 — каменная засыпка; 10 — сливная труба с краном.


    Эта печь-каменка (рис. 44, 45) устанавливается на основание из кирпича. Она имеет П-образную форму и изготавливается из листовой стали толщиной 3 мм. Зазоры между двойными стенками используются в качестве емкости для горячей воды (6 л), которая закипает в печи через 40–50 минут после того, как ее затопят. Камни и вода нагреваются от стенок топки. Для того чтобы вода не забирала температуру от камней, между ними сделан зазор в 10 мм.

    Труба дымохода нагревает воду в баке на 10 л, который приварен вокруг нее. В нагретой воде из этого бака можно стирать даже на следующий день.

    Печь-каменка для дачи

    Для корпуса этой печи вы можете использовать металлическую бочку. Вырежьте у нее в дне отверстие размером 450×250 мм, через которое будет просыпаться зола. Затяните это отверстие решеткой из металлических прутков, приварив их к днищу бочки. Расстояние между прутками решетки — б мм.

    Наверху бочки оставьте кромку шириной 10 мм, на которой будет стоять бак с водой.


    Рис. 45. Схема применения печи конструкции Ф. И. Mapтынкевича: 1 — кирпичный фундамент печи; 2 — поддувало; 3 — колосниковая решетка; 4 — топливник; 5 — емкость с водой; 6 — каменная засыпка в металлической сетке; 7 — утеплитель; 8 — гидроизоляция; 9 — пароизоляция; 10 — вагонка; 11 — асбест; 12 — лист жести 1,5–2 мм; 13 — стена между парной и моечной; 14 — дымоход; 15 — задвижка, регулирующая тягу; 16 — бак с водой на 10 л; 17 — ванна с холодной водой; 18 — скамейка.


    Место соединения бака и корпуса бочки промажьте смесью глины и песка в соотношении 1:1. Чуть ниже водяного бака приварите трубу для дымохода.

    В корпус печи вварите трубы, которые затем заполните каменной засыпкой для получения пара, лишенного угарного газа. В такой печи парообразование будет непрерывным, так как камень отделен от топки. По этой причине не нужно гасить печь во время промывки.

    При непрерывном горении топки вода в баке начнет закипать. Поэтому отлейте ее часть и долейте холодной воды. Влажность атмосферы бани не будет слишком сильно повышаться.

    Для этой печи соорудите кирпичный фундамент на листе жести. Сделайте в фундаменте выемку для подзольника.

    Во избежание повреждения стенок печи-бочки из-за высоких температур обложите их огнеупорным кирпичом (рис. 46).


    Рис. 46. Печь-каменка для дачи: 1 — водогрейный бак; 2 — глино-песчаная замазка; 3 — каменная засыпка; 4 — топка; 5 — облицовка кирпичом; 6 — фундамент; 7 — подзольник.

    Электрокаменки

    В современных банях нагрев до температуры 300 °C чаще всего осуществляется электрокаменкой со встроенным устройством автоматического контроля и регулирования (финские, шведские, германские печи). Устройство отключает электронагреватель при превышении температуры стенок выше допустимой нормы, а также при погасании пламени в топке при попадании на печь, например, полотенца.

    Электрокаменка в семейной бане должна быть оборудована ограничителем температуры, который отключает электронагреватель при достижении температуры воздуха в помещении 140 °C, и реле времени, которое отключает электронагреватель через заданное время непрерывной работы (до 5 часов). Зарубежные фирмы выпускают много видов электрокаменок. Если вы обладаете достаточными средствами, то лучше приобрести хорошую и надежную печь.

    К сожалению, наша промышленность почти не выпускает такие печи малой мощности для семейных бань. Отечественные электокаменки предназначены в основном для общественных бань.

    Самая известная из них — электрическая печь-каменка, которая выпускается Новосибирским заводом электротехнического оборудования. Она имеет мощность 12 кВт. В ее металлическом корпусе помещается камера с ТЭНами. Поверх крышки камеры уложены камни. Принцип работы этой печи таков: воздух, проходя через отверстия, разделяется на два потока. Один поток нагревает камни, а другой — идет по кольцевому зазору, окружающему кожух (рис. 47).

    Вы можете сами соорудить электрокаменку, поставив на электропечь закрытого типа металлическую коробку с камнями. Но предварительно вы должны рассчитать необходимую мощность печи по отношению к размерам вашей бани, объему парной, качеству теплоизоляции стен бани и температуре ее атмосферы.

    Рассчитывается мощность печи так: 1 м3 объема парной требует 0,7 кВт мощности печи. Если высота потолка вашей бани равна 2 м, то для обогрева 1 м2 площади парильни вам потребуется 1,4 кВт энергии.


    Рис. 47. Электрокаменка Новосибирского завода электротехнического оборудования: 1 — корпус; 2 — камера; 3 — ТЭНы; 4 — отверстия; 5 — изоляторы; 6 — кронштейны.


    Для того чтобы увеличить запас тепла, уложите на каменку побольше камней. Желательно отапливать баню электрокаменкой с системой мягкого нагрева. При этой системе каменная засыпка и воздух в парной нагреваются раздельно. Это дает возможность при нагревании камней избежать неприятного запаха от пригорания пыли. Кроме того, такая система позволяет регулировать количество камней в каменной засыпке.

    Печи-каменки на жидком топливе

    Печи-каменки могут отапливаться жидким топливом следующих видов:

    — дизельное топливо;

    — керосин;

    — печное дистиллированное топливо (ПДТ);

    — мазут.

    Для горения топлива в печах-каменках оно должно испаряться с тонкого слоя на дне горелки или разбрызгиваться о дно горелки. В процессе смешения с воздухом топливо нагревается, нагревая воздух бани и камни в печи-каменке.

    В целях пожарной безопасности используйте для топки бани лишь перечисленные виды жидкого топлива с высокой температурой вспышки. Такое топливо трудно воспламеняется, поэтому относительно безопасно. При транспортировке, хранении и использовании топливо должно находиться в канистрах, бидонах или другой легкой закрытой таре.

    Основная часть такой печи-каменки на жидком топливе — горелка, над которой устанавливается капельница с жидким топливом. Для устройства горелки можно приспособить цилиндр из жаростойкого чугуна или стали, заполненный наполовину кусками металла или камня. Эта засыпка обеспечивает предварительный нагрев воздуха и более равномерное смешение его с парами топлива.

    Не используйте под горелку тонкостенные металлические цилиндры — они скоро придут в негодность из-за высокой температуры печи.

    Бак с жидким топливом должен находиться вне парилки. От него отводится труба с фильтром и двумя вентилями. Один вентиль служит для отключения фильтра, а другой — для регулирования расхода топлива. В топку печи трубки должны входить через нижнюю щель в дверке.

    Регулирующий вентиль должен быть защищен фильтром от засорения. По трубке жидкое топливо подается в капельницу, откуда оно капает и разбрызгивается на горелке. Особое внимание обратите на установку капельницы. Расположите ее так, чтобы вы могли наблюдать за процессом попадания топлива на горелку. Внизу горелки должно быть отверстие для сливной трубки, которое соединяется со сливным баком, большим по объему, чем бак с топливом. Сливной бак тоже должен находиться вне бани (рис.48).


    Рис. 48. Печь-каменка на жидом топливе: 1 — бак с топливом; 2 — вентиль; 3 — фильтр; 4 — стена парной; 5 — сливная труба; 6 — труба для подачи топлива; 7 — дверь топливника; 8 — горелка; 9 — глазок; 10 — капельница; 11 —топливник печи; 12 — каменная засыпка; 13 —дымоходная труба; 14 — сливной бак.


    Разжигая печь, сначала сожгите в цилиндре горелки легковоспламеняющийся материал, пропитанный жидким топливом. Только после этого обеспечьте попадание топлива на горелку. При полном сгорании топлива не должна образовываться сажа.

    Современные бани оснащаются печами-каменками для газообразного или жидкого топлива производства ведущих зарубежных фирм. Пользуется широким спросом германская печь-каменка «Васта» с максимальной температурой разогрева 450 °C (рис. 49).


    Рис. 49. Печь-каменка фирмы «Васта»: 1 — перепускной газоход; 2 —дымоход; 3 — задняя секция; 4 — камера сгорания; 5 — горелка; 6 — внутренний корпус; 7 — внешний корпус; 8 — прочистка.


    «Васта» выпускается нескольких размеров и может быть использована в бане с парилкой объемом от 6 до 40 м3. Масса загружаемых в печь открытых камней — 45–70 кг. Нагреваются они теплым воздухом, нагретым между стенками топливника и задней секции и поступающим через металлические стенки газоходов.

    Печь «Васта» оснащена реле времени, ограничителем температуры (максимальная температура нагрева парной — 140 °C), регулятором расхода топлива, регулятором температуры.

    Финские каменки на жидком топливе для общественных бань накапливают большой запас тепла. Они могут вмещать большое количество камней (800 кг).

    Газовоздушные печи-каменки

    Газовоздушные печи-каменки работают на сжиженном газе из баллона. Они должны иметь устройство для отвода продуктов сгорания в газоход, куда монтируют стальную коробку с камнями. Температура нагрева камней в этой печи 180–200 °C.

    Если вы хотите поддерживать в бане самую высокую температуру, то в топливнике газовоздушной печи установите газовую горелку с трубкой для подачи воздуха.

    Газовоздушные печи-каменки имеют большой недостаток — высокую пожаро- и взрывоопасность. При работе печи могут произойти отрыв пламени за счет изменения тяги в дымоходе, накопление в топке взрывчатой смеси газа с воздухом при потухшем пламени, поступление в помещение продуктов сгорания с повышенным содержанием угарного газа.

    Следует соблюдать меры предосторожности:

    — обеспечить проверку печи представителями пожарной охраны и служб по эксплуатации газового оборудования с оформлением акта о пригодности печи к работе на газовом топливе;

    — топить печь должен опытный человек, знакомый с работой газовых печей;

    — не оставлять работающую печь без присмотра.

    Печи-каменки периодического режима действия

    Печи-каменки периодического действия складывают из кирпича. Они имеют толстые стены, долго сохраняющие тепло и обеспечивающие необходимую продолжительность действия бани. Объем каменной засыпки в кирпичной каменке больший, чем в каменках постоянного действия. Максимальная температура нагрева каменной засыпки в нижней части — 1100 °C, а в верхней — 600 °C. При малиновом свечении камней сажа на них выжигается, оставляя камни чистыми.

    Каменную засыпку в печи-каменке нужно закрыть плотной металлической крышкой или дверкой. Открывайте их только после полного сгорания топлива.

    Отделив камни от дымовых газов надежной плитой, вы можете подтапливать печь во время банных процедур. В этом случае ваша печь может стать печью комбинированного режима действия.

    Топка кирпичной печи каменки

    Лучше всего топить печь дротом. Нежелательно использовать уголь для топки каменки. Топка углем имеет много недостатков:

    — ухудшается атмосфера бани;

    — создаются очень высокие температуры;

    — разрушается внутренняя кладка печи.

    Принцип нагревания кирпичной бани заключается в горении топлива на колосниковых решетках печи-каменки. Из поддувала по всей площади топливника к топливу поступает первичный воздух. Он окисляет горючие компоненты топлива, что способствует образованию углекислого газа и паров воды. Во избежание образования угарного газа, снижения полезной теплоотдачи и возможности возникновения пожара из-за возгорания слоя сажи в трубах через отверстия в топочной дверке в топливник пропускают дополнительное количество воздуха, называемое вторичным.

    Прикрытые отверстия для воздуха и задвижки на дымоходе устанавливаются с целью снижения потерь тепла с уходящими газами в начале и конце топки.

    Сооружение печи-каменки из кирпича

    Устройство фундамента

    Во избежание оседания, наклона и растрескивания печи устраивайте фундамент для печи-каменки, придерживаясь следующих правил:

    — заглубляйте фундамент не менее чем на 70 см;

    — не связывайте фундамент печи с фундаментом бани; расстояние от фундамента печи до фундамента стены — не менее 50 см.

    — делайте размеры фундамента больше размеров печи на 1 кирпич (на полкирпича в каждую сторону).

    Выройте котлован под фундамент, размеры которого должны быть на 5 см шире и длиннее, чем размеры печи. Выровняйте его и утрамбуйте. Затем приступайте к возведению стен фундамента из бутобетона, бетона или кирпича (в сухом грунте). Для этого используйте известковый (гашеная известь и просеянный песок в соотношении 1:2), цементный (цемент и песок в соотношении 1:3) или известково-цементный раствор (цемент, гашеная известь и песок в соотношении 1:2:6–16). В последнем случае количество песка зависит от жирности извести и марки цемента.

    Первый ряд фундамента выкладывайте из камня, пережженного кирпича, щебня, гравия, затем тщательно утрамбуйте и залейте раствором. Фундамент не доводят до уровня пола на два кирпича. На выровненную поверхность фундамента на этом же растворе уложите два ряда кирпича, потом — два слоя гидроизоляции на битумной основе. Следующий ряд кирпича начинайте класть на глинопесчаном растворе. Проверьте горизонтальность поверхности фундамента. Промежуток между фундаментом печи и фундаментом бани заполните песком.

    На таком основании можно ставить печь.

    Кладка стен печи-каменки

    Для кладки стен печей-каменок используется обыкновенный полнотелый кирпич I сорта. Для кладки и футеровки топливника печи — тугоплавкий (для печи на дровах) и огнеупорный кирпич (для печи на угле, жидком топливе, газе).

    Нельзя класть стены печей из дырчатого и силикатного кирпича. Они не выдерживают высоких температур и разрушаются.

    Для предупреждения обезвоживания раствора и снижения его вяжущей способности сухой обыкновенный полнотелый кирпич I сорта погрузите на 1–1,5 минуты в воду.

    Для кладки кирпичной печи-каменки используется лишь глиняный раствор (глина и песок в соотношении от 1:1 до 1:2). Для кладки тугоплавкого и огнеупорного кирпича раствор готовят из глины и горного песка или шамота (глина, горный песок или шамот в соотношении от 1:1 до 1:2). Количество песка зависит от жирности глины. Готовый раствор должен соответствовать следующим требованиям:

    — иметь шероховатую поверхность;

    — не содержать комков;

    — не прилипать к лопате;

    — без труда выдавливаться из шва кладки при нажатии на кирпич.

    Предварительно (примерно за 24 часа до кладки) замочите глину в воде. Размоченную глину разбавьте водой до консистенции сметаны. Пропустите разведенную глину через металлическое сито и добавьте в нее просеянный песок. Если раствор получился слишком густой, то добавьте в него воду и тщательно перемешайте. Готовый раствор должен иметь вид сметанообразной массы.

    При появлении на поверхности раствора участков воды добавьте в него песок и тщательно перемешайте раствор.

    Перед тем как уложить кирпичи, подгоните их друг к другу, а только потом кладите их на раствор. Кладку стен печи от фундамента до низа дымоходов можно вести без предварительной раскладки кирпича. При кладке же топливника и дымоходов предварительно подберите и подгоните насухо каждый кирпич с учетом перевязки швов.

    Необходимо строго придерживаться порядовок, указанных в проекте печи, время от времени проверяя правильность кладки уровнем, линейкой, отвесом и деревянным угольником.

    Горизонтальности кладки печи вы сможете достичь следующим образом: первый угловой кирпич кладите на тонкий слой раствора, второй — на более толстый. Перекройте кирпич правилом, на него поставьте уровень. Вдавливая второй кирпич, добейтесь горизонтальности. Так же уложите третий, четвертый и промежуточные кирпичи.

    Кладка стен печи требует заполнения швов раствором на всю глубину. До хода топливника и дна дымовых каналов кладите раствор с мастерка, а затем — расстилайте рукой. Швы между кирпичами должны быть как можно тоньше (для обычного кирпича — 5 мм, для тугоплавкого и огнеупорного — 3 мм). Нельзя перевязывать ряды обычного кирпича с рядами из тугоплавкого или огнеупорного кирпича из-за разного расширения при высокой температуре печи.

    Во избежание отравления угарным газом уплотняйте швы при кладке стен печи.

    Одно из главных требований к кладке печи — строгое соблюдение правила перевязки кирпичей: каждый вертикальный шов должен перекрываться кирпичом верхнего ряда.

    Второе требование — обеспечение ровной и гладкой внутренней поверхности печи. Поэтому для того, чтобы избежать шероховатой поверхности, кладите колотые кирпичи неровными гранями наружу и затирайте внутреннюю поверхность печи влажной мочальной кистью. Это нужно делать через 4–5 рядов. Постоянно проверяйте правильность углов при помощи угольника или шнура.

    Особенность кладки печи состоит в том, что класть следующий ряд нельзя до того, как будет полностью сложен предыдущий.

    Уложите два ряда кирпича. Затем установите по углам печи направляющие шнуры с отвесами, прибив один конец шнура гвоздями к потолку, а другой — намотав на гвозди, вдавленные в швы между нижними двумя рядами.

    Установка печных приборов

    При кладке сразу же устанавливайте в нужных местах водогрейные коробки, колосниковые решетки, дверки, задвижки, плиты и т. д.

    Колосниковую решетку установите в печь, оставляя промежуток между ней и кирпичами кладки в 5 мм. Этот промежуток заполните песком или асбестом, что даст возможность решетке расширяться при нагревании, не разрушая кладку стены. Уложите колосниковую решетку прорезями вдоль топливника.

    Устанавливая плиту над топливником, тоже сделайте промежуток между ней и кирпичами кладки стены в 5 мм, заполнив его асбестом.

    Для того чтобы вмонтировать в кладку рамку дверки топливника, прикрепите к ней заклепками кляммер (лапки) из мягкой стальной полосы. Затем выполите теплоизоляцию рамки, обмотав ее асбестовым шнуром. Иначе рамка, нагреваясь, раздвинет кладку стены печи. Перемычку над этой дверкой выполните из кирпича, уложенного «в замок». При этом средний кирпич скошенными концами уложите на скошенные концы соседних кирпичей. Для того чтобы при открывании дверки угли не выпадали из топливника, его расположите ниже рамки топочной дверки не менее чем на 1 кирпич.

    К дверкам и рамкам задвижек прикрепите проволоку толщиной 2 мм, концы проволоки замуруйте в кладке. Дно зольника установите ниже поддувальной дверки.

    Топливник печи на дровах должен иметь следующие габариты: ширина — не менее 25 см (в один кирпич), высота — не менее 35 см. Обязательно нужно сделать уклон низа топливника в сторону колосниковой решетки. В противном случае уголь не будет оседать на решетке. Внутреннюю поверхность топливника необходимо затирать мокрой тряпкой или кистью через каждые 5–6 рядов кладки, чтобы на стенках не осталось раствора.

    Перекрышу печи (верхнюю стенку) сложите из трех рядов кирпичей, уложенных плашмя с перевязкой. Если вам не удастся перевязать ряды в каких-то местах, то накройте эти места кусками нержавеющей стали.

    Кирпичная печь каменка простой конструкции

    Все металлические печи имеют малую теплоемкость и сильно нагревают воздух, не создают необходимой мягкости и равномерности нагрева тела, не дают желаемого «легкого пара». Поэтому среди сельских жителей и дачников распространены печи-каменки из кирпича. Они бывают разных видов.

    Простая печь возводится на отдельном фундаменте из бутового камня, обожженного красного кирпича и бетона. Фундамент должен быть заглублен в землю не менее чем на 70 см на выровненное основание. Сначала уложите кирпич без раствора и втрамбуйте его в грунт. Последующие ряды фундамента уложите на цементном растворе с перевязкой швов. Поверх фундамента уложите стяжку цементным раствором и гидроизоляцию.

    Нельзя объединять фундаменты печи и бани. В противном случае возникнет разность температурного расширения этих фундаментов и повредится кладка печи. Между фундаментами оставьте расстояние, равное 50 см, и засыпьте его песком.

    Саму печь выкладывайте из красного и огнеупорного кирпича на глиняном растворе. Для предотвращения растрескивания стен печи, подвергаемых действию высокой температуры, при кладке печи:

    — не используйте кирпичи с трещинами;

    — перевязывайте каждый шов предыдущего ряда последующим;

    — делайте толщину швов не более 3 мм;

    — заключите кирпичные стены печи в металлический уголок.

    Для сооружения каменки простой конструкции вам понадобятся котел, дверка поддувала и топливника, чугунные колосники (рис. 50). Средний расход дров — 12 кг/час. Масса каменной засыпки — 150 кг.

    Кирпичная печь каменка с водогрейным баком

    Эта печь имеет следующие габариты: высота — 1,8 м, объем — 2,5 м3. Она удобна тем, что позволяет нагревать воду в стальном сварном баке параллельно с отоплением бани. Печь разогревается за 4–5 часов. В течение 6 часов после топки вода в печи все еще нагревается.


    Рис. 50. Кирпичная каменка простой конструкции:

    1 — кирпичный корпус печи в металлическом уголке; 2 — топливник; 3 — зольник; 4 — колосники; 5 — каменная засыпка; 6 —дверь для выхода пара.


    Устройство в печи дроссель-клапана позволяет ей работать в двух режимах:

    — открыв клапан, вы направите дымовые газы к баку мимо колпака и по каналам;

    — закрыв клапан, вы направите газы в дымовую трубу.

    Для сооружения печи вам понадобятся красный и огнеупорный кирпич, водогрейный бак, дроссель-клапан, дверка поддувала и топливника, чугунные колосники.

    Средний расход дров — 15 кг/час. Масса каменной засыпки — 180 кг (рис. 51).


    Рис. 51. Кирпичная печь-каменка с водогрейным баком: 1 — кирпичный корпус печи; 2 — нижний канал; 3 — вертикальный канал; 4 — каменная засыпка; 5 — топливник; 6 — проем; 7 — водогрейный бак.

    Кладка трубы

    Внутреннюю поверхность дымоходов нужно делать ровной, не замазывая глинистым раствором. Иначе отвалившиеся крошки кирпича и куски глиняного раствора засорят дымоходы. Трубу для каменки толщиной не менее кирпича выполняйте методом насадки на массив печи. При этом проходное сечение дымовых каналов и трубы должно быть в полкирпича.

    Выходящая на крышу труба должна находиться по возможности ближе к коньку. Это улучшает тягу.

    Кладите хорошо обожженный качественный глиняный полнотелый кирпич на цементный или известковый раствор, выводя трубу на высоту не ниже 0,5 м от поверхности крыши, если она находится от конька не далее 1,5 м; до уровня конька крыши, если находится от конька на расстоянии 1,5–3 м и не ниже линии, проведенной от конька вниз под углом 10° к горизонту, если труба от конька расположена на расстоянии более 3 м. При нарушении этих условий не только снизится сила тяги, но и создастся обратное движение воздуха, в результате чего печь начнет дымить. Оказывают влияние на тягу в печи ветер и стоящие рядом дома или деревья с густой кроной.

    Усилить тягу можно устройством верха трубы. На верх трубы уложите цементный раствор, заглаженный под углом 45°. Вместо цементного раствора можно использовать кровельную сталь.

    Соблюдайте расстояние между кирпичной поверхностью печи и деревянными частями бани не менее 40 см. Если вы делаете печь и трубу металлическими, то увеличьте этот промежуток до 1 м.

    Если вы делаете трубу металлической или асбестоцементной, то место соединения ее с кирпичной кладкой необходимо уплотните цементным или известково-цементным раствором. Снаружи трубу обязательно утеплите, заключив ее в кожух из листовой стали с зазором 5 мм и заполнив этот зазор минеральной ватой или другим утеплителем. Благодаря этому вы сможете избежать образования конденсата в охлаждаемой трубе. Конденсат опасен тем, что он увлажняет и разрушает верхние кирпичи печи, снижает тягу, зимой образовывает в трубе ледовую пробку.

    Закройте промежуток между трубой и кровлей оцинкованной сталью (фартуком).

    Обязательно побелите трубу в пределах чердака, чтобы легче было обнаружить трещины.

    На деревянном полу перед топочной дверкой постелите металлический лист размером не менее 70×50 см.

    Установите на трубу дефлектор, обеспечивающий подсос дыма из трубы, улучшение тяги и защиту трубы от осадков.

    Пробная топка печи и просушивание

    Только что сложенную печь нельзя топить. Проверьте ее на наличие тяги, открывая все дверцы, вьюшки, поддувала и оставьте в таком положении примерно на неделю. После высыхания испытайте печь пробной топкой. Печь должна иметь нормальную тягу и не дымить при растопке. Тяга зависит от гладкости внутренних стенок дымоходов (чем более они гладкие, тем сильнее тяга), высоты дымовой трубы (высота трубы от колосниковой решетки до верха должна быть не менее 5 м). Наличие тяги в печи проверяйте с помощью листка бумаги. Если он отклоняется в сторону топки, значит, тяга имеется.

    Просушивание делайте так: жгите на колосниковой решетке сухую щепу в течение часа. При этом полностью откройте топочную и поддувальную дверку, задвижки. Просушивайте печь таким образом несколько дней подряд до полного ее просыхания. Не торопитесь! Ускоренная просушка приведет к растрескиванию поверхности печи.

    Если при первой растопке печь сильно дымит, то сожгите в дымовой трубе немного стружки или бумаги. Это усилит тягу в печи.

    Оштукатуривание стен печи

    После полного высыхания печи выполите отделку ее стен. Если вы оставляете печь без отделки, то зашлифуйте все неровности красного кирпича, швы расшейте. Цвет кирпича можно усилить слабым раствором соляной или серной кислоты.

    Печь-каменку можно облицевать кафельной плиткой или оштукатурить. Толщина штукатурки должна быть 10–15 мм.

    Для приготовления штукатурного раствора используйте следующие составы: глина, цемент, песок, асбест (в соотношении 1:1:3:0,2); глина, песок, асбест (в соотношении 1:2:0,2); гипс, известь, песок, асбест (в соотношении 2:2:1:0,2) — этот раствор схватится через 15–20 минут; глина, известь, песок, асбест (в соотношении 1:1:3:0,2).

    Перед началом оштукатуривания протопите печь. Затем смочите ее водой и нанесите первый слой штукатурки. Он должен быть сплошным. Подождите, пока он схватится, и нанесите следующие слои. Последний слой должен быть особенно аккуратным, ровным, хорошо затертым.

    Побелите стены печи раствором извести с глиной. При добавлении глины цвет стены печи будет более мягкий. Если вы оштукатурили печь раствором с содержанием извести, то белить печь после этого не нужно.

    Каменная засыпка для печи бани

    В печах-каменках накопителем тепла является каменная засыпка из расчета 60 кг на 1 м3 парной.

    Каменная засыпка должна быть отделена от топочной камеры и дымохода. Это предотвратит отравление угарным газом и загрязнение сажей камней засыпки.

    При подборе камней в печь-каменку соблюдайте следующие правила:

    — размеры камней в засыпке должны быть не менее 10 см;

    — подбирайте для каменной засыпки естественные камни, кроме песчаника. Он быстро разрушается, забивая каналы для пламени, дыма и пара;

    — камни должны быть целыми, плотными, с большим удельным весом. Для того чтобы проверить камни на прочность и целостность, ударьте их друг о друга. Сделайте запас таких камней;

    — каменная засыпка не должна расширяться при высокой температуре;

    — камни должны равномерно нагреваться, накапливать тепло и легко отдавать его;

    — камни должны выдерживать высокие температуры и не растрескиваться от холодной воды;

    — отдавайте предпочтение плотным камням круглой формы с гладкой поверхностью. Камни с острыми полупрозрачными краями кремнистых пород вулканического происхождения непригодны. Они могут «стрелять» при попадании на них холодной воды;

    — ежегодно осматривайте камни, заменяя растрескавшиеся целыми. Очищайте каналы между камнями.

    Для печи-каменки наиболее подходящими камнями являются крупные природные камни (валуны, голыши, гранит), накопившие солнечную энергию у рек, озер, заливов. По мнению астрологов, такие камни уже «знакомы» со стихиями Огня и Воды, господствующими в бане.

    Укладывая камни в печь-каменку, внизу размещайте крупные камни, а вверху — помельче. Для предупреждения выброса растрескивавшихся камней уложите наиболее прочные камни со стороны полка.

    Иногда в каменную засыпку добавляют до 20 % чугунных чушек, укладывая их вперемежку с камнями в вертикальном положении. Это ускоряет нагрев засыпки снизу вверх и увеличивает жар в парной.

    Неплохим заменителем камней являются битые керамические и фарфоровые изделия. Они термостойки и выдерживают резкие изменения температуры. Обычно куски этих материалов имеют небольшие размеры и пригодны лишь для верхнего слоя каменной засыпки. Можно использовать также куски кирпича, лучше всего пережженного кирпича-железняка с оплавленными краями, которые непригодны для кладки.

    Вода для бани

    Вода является второй стихией русской бани. Она нужна для создания пара, мытья, приготовления банных отваров и напитков. В каждой русской бане, кроме емкости с горячей водой, должна находиться емкость с холодной.

    При нагревании воды в водогрейном баке следите за тем, чтобы она не закипела, создав в бане повышенную влажность.

    В бане нельзя чрезмерно пользоваться водой (1–2 ведра воды на одного человека). Иначе влажность бани заметно повысится, усилив нагрузку на сердечно-сосудистую систему парящихся. Кроме того, высушить баню будет труднее.

    Вода в бане должна отвечать трем требованиям: быть свежей, прозрачной и мягкой. Жесткую воду можно смягчить, добавив в нее настой деревянной золы. В экологически чистых районах предпочтительно пользоваться талой или дождевой водой. Если вы пользуетесь водой из открытых водоемов, то обязательно дезинфицируйте ее, влив небольшое количество разведенной марганцовки (до легкого розового цвета).

    Приобретите для хранения воды и банных настоев и отваров деревянную посуду. Причем для каждого вида банного отвара должна быть отдельная посуда. Чистую питьевую воду держите в герметично закрытой посуде.

    Вода в бане нужна и для контрастных водных процедур. В бассейнах, оборудованных возле бани, вода должна быть чистой, постоянно обновляться.

    Держите возле бани большую емкость с водой «на всякий пожарный случай».

    Электропроводка и электроприборы в бане

    Конструкция светильников бани и электропроводка должны соответствовать условиям применения их в помещении с повышенными влажностью и температурой воздуха. Поэтому все токопроводящие части защитите термостойкими и водонепроницаемыми оболочками.

    По легковоспламеняющимся деревянным конструкциям бани под изоляционные трубки с проводами подложите полоски листового асбеста толщиной не менее 3 мм, выступающие по обе стороны от трубки на 10 мм. Скрытая проводка в деревянных стенах и оборудовании должна быть защищена с двух сторон асбестовыми прокладками.

    Защититесь от случайного прикосновения к электропечи, устроив на ней деревянное ограждение, обитое со стороны печи асбестовым картоном. Расстояние от печи до ограждения должно быть не менее 4 см. Не проверяйте работу электронагревателей путем прикосновения к ним рукой или открытыми частями тела.

    Для электропроводки в бане применяйте провода с двойной изоляцией марок ПРН, АПРН и ПРВД. Можно также использовать провода с поливинилхлоридной изоляцией АПВ и ПВ (одножильные) и АППВ, ППВ (двух-и трехжильные). Провода марки ПРВД, ПРН, АПРН, имеющие наружную оболочку, можно прокладывать без трубок на роликах. Лучше всего выполнять электропроводку гибкими двух- и трехжильными кабелями ВРГ и АВРГ с резиновой изоляцией и поливинилхлоридной оболочкой. В бане нельзя применять провода в металлических оболочках.

    Не устанавливайте штепсельные розетки, выключатели, переключатели в моечной и парной. Используемые осветительные приборы в этих помещениях должны иметь заглубленный патрон и высокое изолирующее кольцо. Светильники должны быть сделаны из изолирующего материала. Нельзя пользоваться в банях переносными электроприборами, электроаппаратурой.

    Регулярно осматривайте электрооборудование и электропроводку бани. Ремонтные работы электрооборудования проводите после его отключения и принятия мер против автоматического включения.

    Методика банной процедуры в русской бане

    Мы уже говорили о том, что во время посещения парной важно прислушиваться к «голосу» своего организма. Не стоит немедленно забираться на самый верхний ярус полка, ваш организм еще не готов к этой нагрузке. Он должен постепенно прогреваться. Особенно, если вы посещаете баню зимой.

    Перед первым посещением парной полезно выполнить следующие процедуры.

    — «Упражнения» для кровеносных сосудов. Их цель — приучить сосуды к высокой температуре. Эти упражнения заключаются в следующем: нужно опустить ноги в таз с теплой водой, а затем постепенно повышать температуру воды, доливая горячую воду. Длительность процедуры — 15 минут.

    — Принять душ без мыла, для того чтобы пар не высушил кожу и в гигиенических целях. Помните, что голову мочить нельзя, это может вызвать в парной тепловой удар. Только потрите немного тело мочалкой.

    — Вытереться насухо, сняв пот специальным скребком. Если его у вас нет, то можно воспользоваться простой мыльницей. Не все правильно выполняют эту процедуру. Снимать пот скребком нужно по направлению тока венозной крови: от краев к середине тела. С живота — по часовой стрелке.

    — Нужно обязательно надеть на голову шапочку естественной окраски и из плотной шерсти. Этим самым вы защитите голову от перегрева. Если вы по каким-то причинам не взяли с собой шапочку, то ее может заменить сухое полотенце. Из него нужно скрутить на голове тюрбан.

    Сразу после того, как вы зайдете в парную, посидите, а если есть возможность, полежите на нижнем ярусе прикладывая предварительно распаренный веник к лицу и к телу. В этом случае жар будет распределяться равномерно. А если вы будете находиться в парной в вертикальном положении, нагрузка увеличится почти в два раза. В крайнем случае можно сидеть, не свешивая.

    Затем желательно выйти отдохнуть. Посидите в предбаннике в течение 3–5 минут.

    Только после этого можно взять пропаренный веник и рукавицы, зайти в парную и забраться на верхний ярус. Особенно удобны для защиты от жара и для массажа шерстяные толстые деревенские рукавицы или варежки. Мыть эти рукавицы нужно после каждого посещения парной.

    Через минут пять вы начнете по-настоящему потеть в парной, почувствовав при этом чувство облегчения. С каждым посещением бани ваше потоотделение будет усиливаться.

    Войдя в парную держите веник поднятым вверх. Этим самым вы его слегка подсушите, убрав с него лишнюю влагу. Если же вы перестараетесь и совсем высушите веник, то смочите его в теплой воде.

    Если у вас мало опыта, то поучитесь у опытных посетителей парной. Движения веником не должны быть суетливыми. Было бы неплохо, если бы вы парились вместе с кем-то из знакомых. Это обстоятельство позволило бы вам массажировать веником друг друга, добиваясь большего эффекта.

    После того как вы хорошенько пропаритесь, немножко посидите на полке в парилке. Ваш организм привыкнет распределять кровь в вертикальном положении в условиях сильного жара. Только после этого вы можете, не торопясь, спускаться вниз.

    Спустившись с полка, не торопитесь вообще выходить из парной. Вам, конечно же, захочется побыстрее охладиться. Однако, посидите внизу, пусть ваш организм постепенно перейдет к более низким температурам, не перегружая систему терморегуляции. В это время можете скребком снять пот с тела.

    Вы должны соблюдать в парной негласный закон — здесь нельзя много и громко разговаривать. Никакие разговоры не должны отвлекать вас от расслабления, наслаждаться банной процедурой.

    Нельзя находиться слишком долго в парной во избежание слишком большой нагрузки на организм. Ведь цель этой процедуры — стимуляция восстановительных процессов. При температурных перегрузках и перенапряжении системы терморегуляции вы придете к противоположным результатам. Показатель сильного перегрева — учащенное сердцебиение, которое сопровождается головокружением и тошнотой. Вы должны немедленно покинуть парную и посидеть в прохладном помещении.

    Во время посещения бани вы можете зайти в парную раза три. Побыв там 5–10 минут, выходите в прохладное помещение на 15 минут. Париться вениками нужно тоже ограниченное количество времени: по 2–3 минуты. Но это средние показатели. Каждый должен индивидуально регулировать время пребывания и температуру в парной. Некоторые могут долго находиться в горячем жару, а другие — не могут выдержать воздействия невысокого жара на нижней полке и в короткое время. Большое значение имеет настроение и психическое состояние. Если оно достаточно тяжелое, то посещение парной будет только перегружать организм.

    Если банная процедура сделала вас бодрыми, радостными, в результате у вас появился хороший аппетит и сон, то это подтверждает правильность выполненных процедур. Баня принесла вам здоровье. Но когда вы ощутите усталость, тяжесть во всем теле и раздражение — нагрузка в бане была непомерной. Обильное потение ночью тоже будет свидетельствовать о превышенной нагрузке на организм во время банных процедур.

    Зимой можно ходить в баню чаще: по два раза в неделю.







     

    Главная | В избранное | Наш E-MAIL | Добавить материал | Нашёл ошибку | Наверх